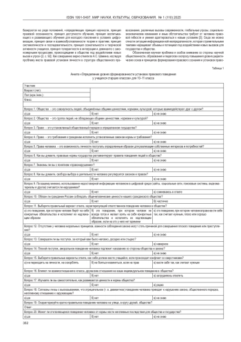
Различные исследования актуальных проблем в системе правового воспитания молодого поколения указывают на то, что в силу трансформации, интеграции и цифровизации российского образования наука беспрерывно движется в направлении наращивания педагогических структур и реализации прогрессивных дидактических принципов в учебном процессе. В условиях информационной неопределенности необходимо уделять особое внимание диагностике и оценке уровня развития установок правового поведения среди подростков. Это послужило основой для проведения эмпирического исследования, направленного на оценку и определение уровня развития установок правового поведения у учащихся 10-11 классов на базе общеобразовательных учреждений г Ростова-на-Дону. В ходе проведения исследования были применены различные эмпирические средства: разработка авторской педагогической анкеты и проведение анкетирования обучающихся, анализ и оценка результатов методики организации и структуризации содержания учебно-воспитательного процесса с учетом применения Федерального государственного образовательного стандарта, рабочих программ, современных технологий для определения уровня развития установок правового поведения учащихся. Все это послужило для представления нового научного взгляда на проблему усовершенствования дидактических принципов правового воспитания в качестве единого механизма формирования правовой культуры и развития установок правового поведения у учащихся старших классов в учебно-воспитательном процессе в условиях информационной неопределенности.
Идентификаторы и классификаторы
- SCI
 - Образование
 
Развитие и становление правовой науки и культуры правового воспитания учащихся является важным и непрерывным условием обучающего и воспитательного процесса в современном российском государстве и системе образования. Эволюционируя во времени в сторону повышения качества стратегий, методологий и способов инициации установок правового поведения по мере возникновения дидактических проблем в учебном процессе образовательного учреждения, педагогическая практика стремится к совершенствованию дидактических принципов.
Список литературы
1. 	Чернобай Е.В., Корешникова Ю.Н. Дидактика и педагогический дизайн: что общего и особенного? Отечественная и зарубежная педагогика. 2021; № 5: 177-190. DOI: 10.24412/2224-0772-2021-78-177-190 EDN: GPLYQD
2. 	Абакумова И.В., Матвеева О.А. Дидактические принципы как механизм формирования правовой культуры в учебном процессе. Инновационная наука: психология, педагогика, дефектология. 2023; № 2: 89-97. DOI: 10.23947/2658-7165-2023-6-2-89-97 EDN: DDGIFW
3. 	Шамина А.С. Место правовой установки личности в структуре правосознания. Мир науки и образования. 2018; № 3 (15): 14. EDN: YNGVLN
4. 	Рабочая программа воспитания для учащихся 10-11 классов МАОУ “Школа № 96 Эврика-Развитие”. 2024. 	
5. 	Рабочая программа (ID 3313441) учебного предмета “Обществознание” (углублённый уровень) для обучающихся 10-11 классов. 2024. 	
6. 	Kadirova Kh. Raising the legal awareness and legal culture of citizens in society. Science and innovation. 2022; № 1: 415-419. DOI: 10.5281/zenodo.6950984
7. 	Nikonova N. Application of interactive and innovative forms and methods in legal Disciplines Teaching. Universidad y Sociedad. 2020; № 12 (2): 212-217. EDN: DOIVAQ
8. 	Siregar H., Kemala V. Citizenship education as legal education in schools. EDUCTUM: Journal Research. 2023; № 2: 30-34. DOI: 10.56495/ejr.v2i1.319
Выпуск
Другие статьи выпуска
В статье освещаются образы некоторых действующих лиц, а также ряд социокультурных проблем, поднимавшихся лакским писателей Магомедом Башаевым (1910-1979) на страницах повести «Ливхъсса душ» (лакск. - «Сбежавшая девушка»). Доказывается, что появление данного произведения является закономерным с точки зрения общего развития литературы на языках народов Дагестана во второй половине XX в. Именно тогда такая форма, как повесть, стала в ней доминирующей. Затем исследуются те аспекты экономической и социокультурной обстановки на территории современной Республики Дагестан, которые имели место в 1910-х гг, т. е. во время действий, происходящих в повести. Демонстрируется, что основу её сюжета составляют реальные события, происходившие в то время в Лакском округе. Характеризуются главные и некоторые второстепенные персонажи. На конкретных примерах демонстрируются связи повести с фольклором народов Дагестана, другими произведениями, написанными в этом регионе, а равно отечественной и мировой литературной классикой, обращение к которым позволило создать столь яркие образы.
В данной статье проводится систематический обзор и оценка существующей литературы по гендерным медиаисследованиям в Китае. Исходя из ключевых концепций и методологических подходов, осуществляется углубленный анализ развития этого научного направления, выявляются региональные особенности, а также рассматриваются перспективы будущих исследований. В статье основное внимание уделяется гендерным медиаисследованиям в китайском контексте. Проведен обзор ключевых концепций и методологий, проанализирована роль медиа в конструировании гендерных ролей, а также исследованы региональные особенности и их отличия от глобальных исследований. Полученные результаты показывают, что на фоне стремительного развития глобальных гендерных медиаисследований необходимо учитывать региональную специфику и разрабатывать теоретические и методологические подходы, адаптированные к локальным условиям. Автор делает вывод о том, что гендерные медиаисследования в Китае должны в первую очередь сосредоточиться на выявлении локальных проблем. Особенно важно для китайских гендерных исследований уделить внимание разработке локальной теории и созданию научной методологической системы. Это обеспечит дальнейшее развитие данной области и усилит ее роль в решении социальных проблем.
Советский плакат представляет собой один из важнейших медиаторов публичной коммуникации, осуществляемой между государством и гражданами в эпоху советского общества. Данный инструмент коммуникации включал в себя плакаты различного жанра, в том числе и информационно-образовательной направленности, которая на настоящий момент не является изученной в должной мере. В связи с этим данное исследование нацелено на исследование взаимосвязи между семантическими элементами плаката и его комплексной коммуникативной интенцией в контексте социально-культурных особенностей советского общества. Анализ, проведенный в рамках интерпретативного и нерепрезентативного подходов, подтвердил выдвинутую гипотезу и доказал, что информационно-образовательный советский плакат содержит в себе два основных коммуникативных намерения - образовательно-воспитательный и агитационный. Плакаты создавались в качестве воспитательного материала, мотивирующего на успешную учебно-трудовую деятельность; были нацелены на создание позитивного представления о новом советском человеке с успешным будущим в тех профессиональных сферах, в которых нуждалось советское общество.
В статье осуществлен анализ генезиса публицистики в контексте литературно-общественных отношений Возрождения на примере творчества Марина Држича. С помощью библиографически-описательного, сравнительно-аналитического, проблемно-тематического и культурно-исторического методов проработана база предыдущих исследований, и получена полная картина источниковой базы исследования, проанализированы взаимоотношения публицистов и общества эпохи Возрождения, выделены ключевые идеи и концепты публицистики Марина Држича, сформулированы основные идейно-концептуальные принципы публицистики данного периода. Сделан вывод, что в условиях ренессансного мира шло дальнейшее развитие всех форм западноевропейского искусства, в том числе можно говорить о генезисе публицистики в ее относительно завершенных формах, методологии её текстотворчества, приемов и методов познания человека и окружающего его социума. Эта система адаптирована не только к беллетристике, но и к документальным формам словесности.
В статье проводится сопоставительный анализ ФЕ с компонентами - глаголами движения в русском, английском и немецком языках. В основу анализа был положен учет лексико-морфологического состава компонентов, а также качество и количество значений ФЕ данного типа. Исследование показало, что ФЕ с глаголами движения широко распространены в исследуемых языках. Они составляют наиболее употребительную часть глагольной лексики. Во всех трех языках имеется множество общих черт. С отобранными нами глаголами движения в указанных языках образуются фразеологизмы, имеющие грамматическую структуру свободных словосочетаний нескольких типов. Общим для них является тип ФЕ, которые имеют грамматическую структуру предложения. Другой тип общий для трех языков - фразеологизмы, состоящие из глагола и существительного, а также глагола и прилагательного. В английском языке преобладают фразеологизмы со структурой глагол + прилагательное. На основе учета лексической вариантности различаются ФЕ различных структурно-семантических группировок.
На страницах настоящей статьи авторы, взяв за основу данные, полученные при анализе биографических сведений о Баграте Шинкубе, а также привлекая некоторые гипотетические положения, касающиеся его личной словотворческой мотивации, устанавливают особенности откровения писателя и текста романа «Последний из ушедших». Кроме того, в расчёт принимается высокий уровень познаний данного деятеля относительно истории и культуры того народа, которому посвящено обозначенное в заглавии произведение. Не обойдена вниманием и связь, существующая между исследовательскими интересами Б. Шинкубы, с одной стороны, и его творчеством - с другой. В статье путём проведения сравнительного анализа исследуются характерные признаки стиля текста этого романа и своеобразия слога. Также в данной работе раскрываются проблемы, связанные с тем, как откровенная исповедь повествователя в романе и выделяемая в статье авторская мотивация дали возможность Б. Шинкубе создать своего рода повествование-открытие, посвящённое жизни убыхов. Б Шинкуба сумел выразить через свои слова глубокие личные переживания и тревоги, связанные с судьбой нации и культуры. Его мастерство в использовании языка и стиля позволило создать произведение, которое до сих пор привлекает внимание читателей и исследователей.
В работе проводится семантический анализ глаголов говорения в русском и английском языках. Отмечается, что исследование соотношений на уровне нормы языка показало, что расхождения в семантическом объеме лексических единиц часто обусловлено экстралингвистическими факторами. В рассматриваемых языках данные глаголы широко распространены ввиду своего большого разнообразия, идиоматичности значений. В глаголах говорения оказывается отраженной взаимосвязь различных аспектов человеческой деятельности. Лексическая многозначность особенно сложно совмещается с большим многообразием грамматических форм. Русской фразе живость и конкретность придают множество разнообразных форм и видов глаголов, видовых окончаний и предлогов, определяющие способ происхождения действия. Глаголы русского языка отличаются богатством оттенков в передаче способов действия. Такого обилия оттенков не наблюдается в других языках. Речь носителей английского языка также богата глаголами говорения. Она редставляет собой картину смеси конкретности и нераздельности семантики. Для передачи семантической структуры русского глагола говорения при переводе очень часто необходимо использовать слова-уточнители, которые служат конкретизации значения. Результаты свидетельствуют о значительном сходстве рассматриваемых лексических микроструктур, об общности их семантики, тематической направленности, семантических категорий. Данные языки характеризуются общностью связей и культурных контактов с давних времен. На оба оказали сильное влияние одни и те же лингвистические эталоны - латинский и греческий языки. Факт общности тематической направленности глаголов говорения может быть этим и обусловлен. Совпадения превалируют над расхождениями в глаголах говорения рассматриваемых языков.
Статья посвящена анализу пространственной нарративной стратегии повести Водолазкина «Близкие друзья», сосредоточившись на типичных пространственных образах, феномене пространственного повтора и перемещении главных героев в пространстве. Важнейшим топосом в повести «Близкие друзья» является Северное кладбище, которое для трех главных героев является местом и предметом воспоминаний детства, сакральным пространством, имеющим для них исключительное значение, а также пространством культурной памяти в повести Томаса Манна «Смерть в Венеции», благодаря чему эти два текста вступают в интертекстуальную связь. С пространством кладбища в качестве ядра повесть разворачивает круговое повествование через повторение пространства и деталей, воплощая тему потока судьбы и круговорота смерти. И перед лицом круговорота смерти главный герой постоянно перемещается в географическом пространстве, осмысливая войну и историю, поминая своих близких друзей и сдерживая клятву, добиваясь перестройки своей личности. В статье делается вывод о том, что пространство в повести Водолазкина «Близкие друзья» играет важную роль в развитии сюжета, выделении темы повествования, формировании структуры повествования и является одним из ключевых элементов, составляющих повесть в целом.
Статья посвящена исследованию временных категорий в монгольском языке через анализ лексем цаг и уе, которые играют ключевую роль в формировании языковой картины мира монголов. Работа акцентирует внимание на уникальной структуре и взаимосвязи данных лексем, отражающих как измеримые, так и качественные аспекты времени. Цель исследования заключается в выявлении семантических и функциональных особенностей этих лексем, а также их взаимодействия в передаче временных отношений и культурно-философских концептов времени. Автор приходит к выводу, что лексема цаг отражает линейность и измеримость времени, а уе акцентирует внимание на цикличности и преемственности. Их объединение в парное слово цаг уе создаёт многослойную концепцию времени, интегрирующую социальные, культурные и когнитивные аспекты восприятия. Исследование не только расширяет представления о временных категориях монгольского языка, но и подчеркивает их значимость для изучения взаимодействия языка и культуры. Работа закладывает основу для дальнейших исследований временных категорий, включая их отражение в современной литературе, фольклоре и медиа.
Данная статья посвящена исследованию сино-тибетских диалектов Хорпа - недостаточно изученного лингвистического кластера, расположенного в пределах Тибетского автономного региона и провинции Сычуань в Китае. В представленном исследовании подчеркивается необходимость описать и сохранить диалекты Хорпа, которые находятся под угрозой исчезновения. Работа направлена на восполнение отсутствия комплексной информации в русскоязычных лингвистических источниках, систематизацию имеющихся данных о диалектах Хорпа, анализ их географического распределения и определение их лингвистического статуса относительно других китайских диалектов. Целями исследования являются упорядочивание и наглядное представление информации о диалектах Хорпа в таблицах и рисунках, а также содействие дальнейшим исследованиям сино-тибетских языков и диалектов в синхронном и диахронном аспектах. Также предлагаются стратегии сохранения исчезающих языков. Поскольку кластер диалектов Хорпа представляет собой уникальный лингвистический и культурный феномен, заслуживающий дальнейшего изучения, предложенная в данной статье классификация диалектов и их описание на русском языке обогащает область теоретической и исторической лингвистики, создавая основу для будущих исследований и усилий по их сохранению.
Статья посвящена проблеме смыслообразования в тексте, где тембр, как особая сверхсегментная окраска речи, играет ключевую смыслоразличи тельную роль. Благодаря тембру говорящий способен выделить элементы речи. Несмотря на то, что в ранних исследованиях машинного обучения делали акцент на анализе просодических свойств речи, в последующем этот вопрос не получил должного развития. Реципиент улавливает скрытые и небуквальные значения и понимает смысл высказывания посредством определения выделенности элементов речи. Использование механизма многоголосового внимания и BERT позволяет вычислять выделенность слов. Метод, предложенный в работе, основан на моделировании просодического индекса, который является количественной мерой выделенности слова, отражающей его вклад в просодические и семантические аспекты текста. Выяснилось, что метод просодического индекса позволяет оценивать выделенность слов в контексте более точно, чем традиционные методы, такие как bag-of-words и TF-IDF.
В данной статье рассматривается влияние английского языка на развитие индонезийского языка (Bahasa). Цель исследова ния – определить степень воздействия английского языка на формирование современного индонезийского языка на фонетическом, грамматическом и лексическом уровнях. Анализ проводится на основе отобранного материала. Рассматриваемый лингвистический феномен показывает, как индонезийский язык может быть эффективно адаптирован к английскому. Использование английского стало преобладающим в современном языке Bahasa, что придает индонезийскому обществу, характеризующимся языковым разнообразием, транснациональный контекст. По результатам исследования предполагается интегрировать полученные данные в будущие научные работы для более детального анализа представленной темы, использовать исследованные материалы при чтении лекций по теории язык.
В статье раскрывается проблема разработки терминов «диалект», «социолект», «идиолект» в лингвистической науке, обусловленная современными глобальными процессами, влияющими на их интерпретацию. Целью исследования является сравнительный анализ данных лингвистических терминов в диахроническом и синхроническом аспектах на основании таких критериев, как социальная маркированность, особенности проявления на разных уровнях национального языка и отношение к стандарту языка. Основным методом исследования является теоретический подход к пониманию понятий диалект, социолект, идиолект, поиск взаимосвязей и различий между ними. Материалы, представленные в данном исследовании, помогут в дальнейшем уточнить терминологический аппарат лингвистики, в частности, углублённо изучать глобальные языковые изменения, механизмы выделения и существования языковых вариантов в XXI веке. Исследование имеет прикладной интерес, так как показывает перспективу использования его результатов в процессе обработки естественных языков и улучшении языковых моделей генеративного искусственного интеллекта.
В статье рассматривается проблема феномена двусмысленности, возникающей на уровне синтаксической структуры предложения. На основании анализа имеющихся по теме работ дается обобщенная характеристика понятия двусмысленности как лингвистического феномена. Основное содержание исследования составляет анализ типов синтаксической двусмысленности - присоединительного, группирующего, сочинительного, категоризующего, референциального, а также поиск способов ее разрешения. В качестве исследовательской задачи была определена попытка оценить, насколько целесообразно использование метода непосредственно составляющих для верификации двусмысленности. В результате было установлено, что данный метод, наряду с традиционным коммуникативно-прагматическим анализом, позволяет наглядно визуализировать и подтвердить изменения в структурах двусмысленных предложений посредством рисования синтаксических деревьев. В свою очередь, трансформационный анализ позволяет эффективно нейтрализовать данный тип двусмысленности путем множественного перефразирования исходной структуры. Практическая часть исследования проведена на материале новостных заголовков англоязычного сайта The Mirror.
Статья посвящена анализу англицизмов в румынском языке и их влиянию на языковую идентичность носителей румынской речи. В условиях глобализации и цифровизации английский язык активно проникает в лексическую систему румынского языка, что порождает сложные этносоциолингвистические процессы. Рассматривается феномен «ромглезы», представляющий собой интеграцию английской лексики в румынскую речь с различной степенью адаптации. Исследование включает анализ социальных, исторических и лингвистических предпосылок появления англицизмов, их лексико-семантических и морфологических особенностей, социокультурных факторов, способствующих их активному применению в различных сферах (СМИ, интернет-коммуникация, профессиональный жаргон). Выявлены ключевые механизмы и последствия использования англицизмов, в том числе их роль в формировании двойственной идентичности, которая балансирует между сохранением национальных языковых традиций и стремлением к глобальной интеграции. Полученные результаты подчеркивают влияние англицизмов на современные нормы румынского языка, их статусные и экспрессивные функции, роль в изменении языковой картины мира носителя румынского языка.
Данная статья посвящена анализу новых тенденций изучений миноритарных языков. Рассмотрены новые тренды при изучении уязвимых языков (онлайн-обучение, мобильные приложения для изучения языков, формат смешанного обучения, межкультурное обучение, использование технологий искусственного интеллекта, использование социальных сетей и интернет-сообществ в вопросе продвижения и популяризации миноритарных языков, вовлечение культурных аспектов в процесс изучения языков). Также в представленном научном труде сообщается о роли цифровизации, которая способствует созданию хранилищ языковых материалов, что положительно сказывается на сохранении и продвижении миноритарных языков. Проанализирован геймифицированный метод изучения языков меньшинств в качестве передовой технологии в вопросе языкового освоения. Представлен проект виртуальной школы абазинского языка «Абаза ажва» в качестве примера геймифицированного метода в цифровом пространстве. Сделаны выводы, что использование новых трендов при изучении языков малочисленных этносов может положительно сказаться на сохранении языкового разнообразия как части нематериального культурного наследия России.
Статья, выполненная на материале современных французских телесериалов Christmas Flow и Plan Caur, представляет собой описание алгоритма анализа синонимики французских арго, включающего такие компоненты, как систематизация неконвенциональных лексем и экспликация функций арготических синонимов. В ходе изучения особенностей синонимики в телесериалах рассмотрены также семантические сферы, концентрация и способы семантизации неконвенциональных синонимов. В статье вводятся в научный оборот понятия «доминирующий синонимический блок», «концентрация арготических синонимов», «центральный арготизм синонимического ряда», «плотность арготических синонимов». Результаты, полученные в ходе исследования, могут быть использованы как для разработки учебных курсов по социолингвистике и лексикологии французского языка, так и для дальнейшего лексиграфирования компонентов специфического лексического континуума.
Целью настоящего исследования явилась попытка выделить тактики и определить языковые средства репрезентации коммуникативной стратегии самозащиты в политическом дискурсе Германии на материале протоколов заседаний бундестага последнего созыва в период с сентября по октябрь 2024 г. Проведенное исследование позволило дополнить имеющиеся классификации тактик, выделить характерные для них языковые средства и структуры, определить их функциональный потенциал. Следует подчеркнуть, что под самозащитой в работе рассматривается в первую очередь отстаивание своей позиции представителями правящих партий перед лицом оппозиции, в частности, по таким ключевым вопросам, как бюджетная политика и внутренняя безопасность ФРГ Особый интерес представляют собой выделенные языковые средства, структуры и риторические приемы, которые тем не менее требуют дальнейшего, более глубоко изучения для уточнения их функционального потенциала в отношении конкретной тактики с целью создания корпуса средств успешной реализации самозащиты, защиты своего мнения.
В статье на материале «Словаря псевдонимов русских писателей, ученых и общественных деятелей» И. Ф. Масанова анализируются особенности образования негатонимов с дефисным написанием приставки не-, их значения, а также версии происхождения в русском языке. Основная задача исследования - анализировать семантические особенности таких слов, а также их мотивацию, включающую отрицание настоящего имени человека, литературного персонажа, псевдонима, принадлежности к определенной сфере деятельности, к группе лиц с определенными политическими взглядами, какой-либо иной характеристики человека, а также местоимений. Особое внимание уделяется механизмам создания негатонимов и их воздействию на восприятие читателя. Установлено, что в одних случаях мотивация негатонимов направлена на создание комического эффекта, что способствует привлечению внимания широкой аудитории. В других случаях мотивация негатонима связана с отражением актуальных событий и содержанием аллюзий, отсылающих к определенным реалиям или идеологическим контекстам. Обнаруживается, что на основе способности читателя «расшифровать» негатоним типы мотивации негатонимов с дефисным написанием приставки не- могут быть различны.
В данной статье рассматривается влияние экстралингвистических факторов на формирование новых значений внутри терминологических систем. Ис следование фокусируется на том, как нелингвистические элементы, такие как социальные, культурные, технологические и научные разработки, влияют на эволюцию определенного словарного запаса. Анализируются процессы, посредством которых внешние факторы способствуют появлению новых смыслов в профессиональной и научной терминологии. В статье показано, что развитие терминологических систем обусловлено не только языковыми механизма ми, но и внешними факторами, которые приводят к появлению неоднозначных терминов в специализированных областях. Путем углубленного анализа различных терминологических систем исследование выявляет ключевые экстралингвистические влияния и предлагает основу для понимания того, как они взаимодействуют с лингвистическими структурами для формирования новых значений. Результаты подчеркивают динамичный характер терминологической эволюции и дают ценную информацию о роли внешних факторов в непрерывной адаптации конкретного языка. Это исследование способствует более глубокому пониманию взаимодействия между языком и экстралингвистическими реалиями и закладывает прочную основу для будущих исследований в области терминологии и развития языка.
Статья посвящена исследованию языковой специфики инструктирующей коммуникации в англоязычном мотивационном дискурсе TED Talks. В работе выявляются и описываются основные языковые лингвопрагматические характеристики мотивационного дискурса TED Talks, включая особенности функционирования инструктирующей коммуникации в рамках исследуемого дискурса, представлен анализ публичных лекций TED Talks c позиции актуализации побуждения адресата к изменениям. Авторами рассмотрены публичные лекции TED Talks с позиции языковой специфики инструктирующей коммуникации, как способа мотивационного воздействия на адресата и побуждения его к изменениям. На основе анализа 15 транскриптов лекций TED Talks были выявлены около 420 целевых речевых актов и классифицированы в соответствии с языковой формой и коммуникативной функцией. Особое внимание уделяется тому, как спикеры чередуют прямые и косвенные формулировки, а также эксплицитные и имплицитные директивы, рекомендации и призывы. Результаты исследования показывают, что инструктирующая коммуникация в мотивационном дискурсе TED Talks преимущественно актуализирована косвенными, имплицитными речевыми актами. Такая особенность продиктована намерением спикера TED установить доверительные отношения с аудиторией и смягчить директивный тон обращения. Это способствует эффективному вовлечению аудитории и формированию определённых поведенческих изменений для реализации ключевых намерений мотивационных спикеров.
В статье рассматривается проблема определения иерархии кинодискурса в рамках системы проката кинофильма на примере французского кинодискурса. В данном случае кинодискурс понимается нами как особое семиотическое пространство, обладающее этноспецифическими и прагматическими особенностями репрезентации. Материалом исследования послужили французские кинофильмы 1954-2024 гг, их малоформатные тексты (кинозаголовок, синопсис, слоган, постер, трейлер) и полидискурсивные единицы кино- и других типов дискурса. Автором выявлены этапы реализации системы проката кинофильма: предпрокатный, прокатный и прокатный, каждый из которых обладает свойственной ему совокупностью элементов. Система проката кинофильма отличается линейной иерархией, где на основании критерия появления в прокате элементов каждого из этапов первый уровень отведен предпрокатному этапу, второй - прокатному этапу и третий - постпрокатному этапу. Внутри каждого из уровней иерархии выделены подуровни, состоящие из элементов конкретного этапа согласно критерию функционирования в них прецедентных феноменов кинофильма.
Данное исследование посвящено анализу стилистических и языковых характеристик текстов песен на английском языке. Основу материала составили тексты популярных англоязычных песен, отобранных по результатам их присутствия в онлайн-рейтингах. Главная задача исследования заключалась в изучении основных музыкальных жанров и выявлении характерных языковых особенностей, встречающихся в текстах песен. В рамках работы были постав лены следующие задачи: 1) определить самые популярные музыкальные жанры; 2) провести анализ текстов песен и выделить наиболее употребляемые лингвостилистические приемы, нарушающие языковые нормы. Для реализации целей использовались такие методы, как анкетирование и филологический анализ. Уникальность исследования заключается в сочетании двух подходов – изучение языковых особенностей и грамматических ошибок в текстах песен и проведение опроса подростков для выявления современных тенденций и жанров, популярных в музыкальной индустрии. Перспективы дальнейшего исследования включают изучение специфики перевода современных англоязычных песен на русский язык и обратно.
В статье развиваются идеи теории самопрезентации как коммуникативной стратегии управления впечатлением. В центре работы находится соотношение стратегии, присущих ей тактик и тех коммуникативных ходов (речевых приемов, языковых средств), в которых реализуются тактики. Особое внимание в исследовании уделяется самому выбору такого соотношения, методологического подхода, где предполагается заведомо более широкий охват коммуникативных ситуаций, реализующих стратегию самопрезентации. В статье вслед за концепцией А. В. Аксеновой выделяется несколько ключевых аспектов самопрезентации: дистанцирование и сокращение дистанции по отношению к реципиенту и другим людям; позитивная и негативная оценки, которые актеры применяют для передачи ценностного отношения к своей профессии, мировоззрения; внешняя и внутренняя направленность самопрезентации; прямая и косвенная самопрезентация. На материале 320 высказываний описываются ведущие тактики самопрезентации российских актеров в жанре интервью.
Цель исследования - выявить неразрывную связь семантических доменов с телом глагола, модальным прагматическим значением и пониманием двусмысленности предложения через углубленное изучение способов функционирования семантических доменов в рамках современной русской семантики. В работе разобраны и обобщены основные теории и методы современной русской семантики, особенно связанные с семантической сферой действия. Сделан анализ, каким образом семантическая сфера действия играет роль в семантике предложения, и выявлены механизмы их влияния на формирование общего смысла предложения. Проведено исследование внутренних связей семантических доменов с глагольными видами, модальными прагматическими значениями и пониманием двусмысленности предложения. В данной статье сочетаются методы обзора литературы, теоретического анализа и эмпирического исследования. Научная новизна исследования заключается в том, что семантическая сфера в этом исследовании рассматривается с точки зрения способа действия и внутренних связей в рамках этой сферы, восполняются пробелы в соответствующих исследованиях китайских авторов. В сочетании с эмпирическим анализом конкретных языковых материалов выявлен фактический способ действия и механизм влияния семантической сферы в семантике предложения, что обеспечивает сильную поддержку теоретическим исследованиям. В результате определено, что семантические сферы действия играют важную роль в семантике предложения, в сферу их влияния входит формирование общего смысла предложения и способ функционирования лексических единиц в предложении. Семантические сферы действия неразрывно связаны с видами глаголов, модальным прагматическим значением и пониманием двусмысленности предложения, что показывает сложность и разнообразие семантических сфер действия в семантике предложения. Теория и метод, основанные на семантической сфере действия, дают новые идеи и методы для обработки естественного языка, машинного перевода и других областей, имеют высокую прикладную ценность и перспективу развития.
Включение элементов параязыка в поле интересов лингвистики позволяет сегодня говорить о паралингвистике как о разделе языкознания со своим объектом и предметом изучения. Цель статьи - описать современное состояние паралингвистики и оценить перспективность данного направления. Основное содержание исследования составляет анализ работ в указанной области за более чем полувековой период. Автор прослеживает становление паралингвистики как самостоятельной области лингвистического знания. В статье дан анализ научных изысканий советский и российской русистики, позволивший уточнить перечень параязыковых элементов, разрабатываемых в русле указанного направления. Возникшая в начале ХХ века паралингвистика, расширив вектор лингвистических исследований, до настоящего времени не только не потеряла своей актуальности, но и имеет перспективы развития. Уровень разработки данной науки в настоящее время позволяет вводить ее материал в учебную литературу.
В данной статье анализируются языческие и христианские элементы, представленные в тексте «Слова о полку Игореве», с целью исследования национального характера древнерусского народа. Особое внимание уделяется выявлению корней его сложности и уникальности. Национальный характер народа формируется под влиянием различных культурных факторов, и одним из ключевых аспектов является литература. Литературные произведения, являясь прямыми носителями национальной мысли, наиболее ярко отражают мировоззрение своего народа. Изучение древней литературы представляет собой важнейший источник для понимания базовых принципов и процессов формирования национального характера. «Слово о полку Игореве» - одно из наиболее значимых произведений древнерусской литературы. Оно содержит богатый пласт идей, отражающих духовное, культурное и мировоззренческое наследие древнерусского народа. Этот памятник заслуживает углублённого анализа, способного пролить свет на ключевые аспекты национального характера. В данной работе анализируется содержание «Слова о полку Игореве» на основе оригинального текста первого издания 1800 года, выполненного на старославянском языке. Основное внимание уделено проявлению в тексте языческих и христианских элементов, а также их взаимодействию. Особое место в исследовании занимают образы животных, которые рассматриваются с функциональной точки зрения. Они выполняют не только декоративную функцию в сюжете, но и несут глубокую символическую нагрузку, отражают представления древнерусского народа о гармонии и сосуществовании человека и природы. Посредством анализа и интерпретации этих образов в статье раскрывается благоговейное отношение древнерусского общества к природе, подчёркивается его зависимость от неё и единство с ней. Таким образом, исследование «Слова о полку Игореве» позволяет не только углубить понимание национального характера древнерусского народа, но и проникнуть в истоки его формирования. Интерпретация текста через призму языческих и христианских элементов, а также анализ животного мира открывают новые перспективы для изучения культуры и мировоззрения древней Руси.
Статья посвящена исследованию трансформации смыслов романа Дино Буццати «Загадка старого леса» в одноименном фильме Эрманно Ольми. Целью работы является объяснение смысловых изменений вербального текста в результате интерсемиотического перевода. Для выделения отличительных признаков оригинального и нового текстов и сопоставления их необходим семиотический анализ. Киноинтерпретация вербального текста осуществляется на уровнях композиции, повествования, персонажной системы, жанра. Переводческий процесс в данном случае детерминирован разнородностью материала двух искусств. Формирование смысла нового текста происходит в диалоге разных семиотических систем, который далеко не всегда предполагает нахождение точных аналогов в словесном и кинематографическом языках. По завершении исследования признается неизбежность смысловых трансформаций литературного текста, переведенного на язык кино.
В статье уделяется внимание мошенническому дискурсу исследуются тексты дословного содержания фонограмм. Источник - материалы уголовных дел, возбужденных по статье 159 Уголовного Кодекса Российской Федерации «Мошенничество». Обозначается локутивная, иллокутивная, перлокутивная составляющие коммуникативного акта в мошенническом дискурсе. Показывается, как мошенник использует специфическую локуцию для привлечения внимания, имеет иллокуционные намерения, реализующие манипуляцию, и в конечном итоге стремится вызвать определенные перлокуционные реакции у жертвы, такие как страх или срочность, которые ведут к нежелательным действиям и потерям для слушающего, но к достижению коммуникативной цели для говорящего. На примерах обозначаются перлокутивные эффекты, выявлены такие типы, как страх и паника, чувство вины и ответственности, срочность и спешка, доверие. Обозначается, что анализ перлокутивного эффекта помогает лучше осознать и идентифицировать потенциальные угрозы в коммуникации, а также укрепить навыки распознавания манипуляции.
В статье персуазивность рассматривается как дискурсивно-диктемная категория, и выделяются языковые маркеры ее объективации в англоязычных новостных медиатекстах на уровне предложения и текста (диктемы). Доказано, что современные новостные медиатексты, кроме информирования имплицитно или эксплицитно используют персуазивные языковые приемы, которые создают определенное эмоциональное состояние у читателей, тем самым формируя положительное или отрицательное отношение к освещаемому факту действительности. Адресатом таких новостных сообщений является обобщенный образ читателя, и персуазивность достигается употреблением имен собственных, числовых данных, цитирований; сложных полипредикативных конструкций, предложений с модальными глаголами и параллельными синтаксическими конструкциями, а также отрицательных конструкций. Персуазивность новостных медиатекстов, адресатом которых является персонифицированный образ читателя, достигается употреблением нарицательных имен существительных, определенной тематической группы, включая термины, цитирований, цифровых данных; пассивных конструкций, повелительных предложений, безличных и неопределенно-личных предложений и определительных инфинитивных конструкций, в семантику которых входит модальный компонент.
Статья посвящена изучению стилистических средств отражения русского национального менталитета в паремическом корпусе языка и особенностям их межъязыковой передачи. Дана характеристика сказочного дискурса как составной части паремического корпуса языка и определена его роль для исследования менталитета русского народа. На основе анализа текста сказки С. Т Аксакова «Аленький цветочек» и его перевода на английский язык выявлены три основополагающих признака русского национального менталитета: безмерность русской души; готовность пожертвовать собой во благо общественных интересов и духовно-нравственная основа русского семейного уклада, связанная с почтением старших и бережным отношением к детям. В рамках проведенного анализа выявлены специфические стилистические средства, воплощающие каждую конкретную черту русского характера. В результате установлено, что при межъязыковой передаче экспрессивно-окрашенной лексики зачастую происходит изменение сигнификативных коннотаций, что обусловлено значительными различиями в специфике менталитета русских и англичан.
В статье проанализированы формы и способы использования в творчестве Державина персонажей, наделенных способностью полета, как реальных, так и фантастических, с выделением основной группы пернатых существ - птиц с точки зрения поэтики и аксиологии их включения в произведения разных жанров. Многоаспектность семантики и ценностных значений крылатых персонажей в поэтических произведениях разных жанров демонстрирует новые грани богатства поэтики Державина, соединяющей черты классицистических канонов с сентименталистскими мотивами и реалистическими деталями. Данное исследование творчества ГР Державина, охватившее все его поэтические жанры, позволяет наглядно продемонстрировать присущее поэту многообразие художественных форм воплощения «пернатых» персонажей в виде метафор, сравнений и перифраз, выражающих как традиционно классицистические символические смыслы, так и идиллические сентименталистские эмоции любования природой, наряду с ироническими и откровенно сатирическими трактовками в духе басенной аллегории. Расширение анализа на материале новых групп природных образов и персонажей позволит выявить новые черты художественной картины мира Г. Р. Державина и обогатит наше представление о его творчестве.
В работе рассматривается этническая стереотипизация немцев французами на примере une querelle d’Allemand («немецкая ссора») с точки зрения исторического контекста и этнокультурного взаимодействия в современных условиях. Целью исследования является описание данного этностереотипа в дискурсивных практиках и попытка сопоставления его с определённым культурным сценарием, моделью поведения в немецком обществе. Задачи исследования включают установление происхождения, частотности фразеологизма une querelle d’Allemand и соотнесение данного гетеростереотипа с представлениями немцев о самих себе. В результате исследования установлено, что актуализация этностереотипа «немецкая ссора» в немецком дискурсе осуществляется двумя путями - через французское заимствование une querelle d’Allemand и его немецкоязычный эквивалент eine deutsche Querele, при этом оба выражения имеют ограниченное функционирование в немецком языке и представляют собой, соответственно, гетеро- и автостереотип. Первый основан на истории конфликтов немцев с французами, а второй - на собственных наблюдениях особенностей национального характера. Автор приходит к выводу что формирующийся на основе этностереотипа культурный сценарий «немецкая ссора» нельзя считать нормой, но можно назвать негативным сценарием поведения, к которому некоторые немцы относятся критично или с самоиронией, в то время как другие не признают наличие данного этностереотипа, считают его устаревшим и незнакомы с французским выражением querelle d’Allemand.
Повесть В. П. Некрасова «В окопах Сталинграда» имеет в литературном процессе XX столетия свою во многом уникальную историю. Произведение было издано в короткие сроки в журнале «Знамя» в 1946 г, в 1947 г автору присуждена Сталинская премия второй степени, в 1970-е годы произведения писателя запрещены и изъяты из библиотек. Не менее драматична и история изменения заглавия. Изначальное авторское заглавие в машинописной рукописи было «На краю земли». После редакторской правки первым официальным заглавием становится «Сталинград» с жанровым обозначением «роман». Сталинская премия присуждается В. П. Некрасову за повесть «В окопах Сталинграда». В статье исследуются все варианты заглавия сталинградской повести писателя. Выявляются контекстные семы и смысловые приращения, необходимые для адекватной интерпретации трех вариантов заглавия. Делается вывод о семантической амбивалентности итогового заглавия повести. Именно оно дает ключ к адекватной интерпретации произведения и уравновешивает номинативную и предикативную функции заглавия.
В данной статье рассматривается нарративная перспектива повести И. Тургенева «Затишье», созданной в 1854 году. Это произведение отражает сцену женского самоубийства, что и придаёт ему особую драматическую глубину. На первый взгляд, судьба главной героини Марьи, как и других женских образов у И. Тургенева, связана с трагической любовью. Однако её поступок - добровольное погружение в озеро - отличает её от остальных героинь, делая Марью одной из немногих женщин-самоубийц в творчестве писателя и придавая её образу уникальное место в его литературном наследии. В «Затишье» И. Тургенев прибегает к использованию множественной нарративной перспективы, чётко разделяя функции наблюдателя и повествователя. Такой подход не только обогащает повествовательную структуру повести, но и позволяет более глубоко раскрыть сложные взаимоотношения между персонажами, а также тонкие психологические изменения, происходящие с героями, передавая авторское отношение. Через чередование и переплетение различных нарративных перспектив - всеведущей перспективы повествователя, ограниченной перспективы персонажа и внешней перспективы камеры - И. Тургенев не только подсказывает судьбу героини, но и раскрывает свои взгляды на положение женщины, размышляет о природе любви, морали и русском обществе.
Статья посвящена исследованию процессов становления и пополнения функционально-семантических полей на материале церковнославянского языка. Целью исследования является определение способа выхождения элементов функционально-семантического поля в область его презентации, реализации в высказывании, взаимодействия с элементами других полей. В центре внимания находятся предикативное, предметное, атрибутивное и обстоятельственное ядра, их структурирование и взаимодействие в рамках различных типов ситуаций: темпоральных, аспектуальных, модальных, посессивных и локативных. Методы исследования включают сравнительно-сопоставительный метод и лингвистический анализ церковнославянских текстов, отражающих «проекцию на речь». Показано, как грамматические формы реализуются в прецедентных текстах, обнаруживая их связь с типами ситуаций. В заключение автор предлагает к рассмотрению функционирующие в корпусе прецедентных текстов церковнославянского языка высказывания, где действие грамматических форм определено различными типами ситуаций: темпоральных, аспектуальных, посессивных и локативных.
Статья посвящена обоснованию лингвистики нейросетей как нового научного направления, возникающего на пересечении лингвистики, компьютерных наук и когнитивистики. В исследовании описываются и сопоставляются компьютерная и корпусная лингвистики, выделяются их задачи и взаимосвязь с искусственным интеллектом. Особое внимание уделяется терминологическому аппарату нового научного направления, исследуются этапы обработки текста нейросетями и задачи, решаемые в рамках обработки данных на естественном языке, включая выделение сущностей, анализ тональности и построение языковых моделей. Статья подчеркивает значимость лингвистики нейросетей для совершенствования взаимодействия человека и машины, а также перспективы ее применения в создании мультимодальных моделей, изучении редких языков и исследовании механизмов человеческого мышления. В исследовании представлены и охарактеризованы архитектуры современных нейронных сетей. Выводы статьи формируют основу для дальнейшего развития данного междисциплинарного направления.
Целью настоящего исследования стало выявление разнообразия семантических типов и структурных моделей гастрономической лексики в условиях современного англоязычного кинотекста. В результате анализа эмпирического материала была составлена классификация структурно-семантических типов глюттонима в условиях бытовой и массовой культуры, представленной современным кинематографом. Особое внимание было уделено роли лингвокультурологического компонента лексемы, передающей фоновые знания посредством отдельного слова, а также фразеологизма с национально-культурным компонентом значения. Полученные результаты позволили установить, что в кинематографическом дискурсе глюттоним выступает элементом англоязычной культуры либо принимает на себя функцию передачи культурного кода другого языка. В последнем случае он представлен в виде полного и частичного заимствования. В ходе исследования применялись методы контекстуально-семантического и стилистического анализа. В работе были приведены количественные данные на основе рекуррентности исследуемых лексем в проанализированных фильмах, а также намечен вектор дальнейших исследований глюттонима, связанных с его функционально-прагматическим потенциалом и проблематикой перевода на русский язык.
В статье обсуждаются результаты исследования, нацеленного на выработку механизмов создания адекватного перевода единиц терминосистемы «Устойчивое развитие и изменение климата» на материале русского и английского языков. С привлечением 113 текстовых фрагментов, содержащих 181 терминологическую единицу и сочетаний, изъятых из академических текстов на двух языках (монографий, научных статей, опубликованных в высокорейтинговых журналах, номинационных досье природных территорий международного значения и аннотаций, посвященных проблеме устойчивого развития природных территорий: геопарков, особо охраняемых природных территорий различного типа), показаны специфические формальные, содержательные и функциональные признаки терминосистемы, которые необходимо учитывать при создании адекватного перевода терминологии, формирующей её. Для интерпретации терминологии применён широкий подход: в её состав включены собственно термины, номенклатурные единицы (номены) и терминоиды.
В статье представлено исследование концепта RISK в англоязычной профессиональной картине мира, основанное на дефиниционном анализе лексем, репрезентирующих данный концепт в дискурсе страхового права. Исследование направлено на выявление семантических характеристик и контекстуальных вариантов репрезентации концепта RISK, что способствует систематизации существующих знаний о нем и определению его значимости в юридическом дискурсе. Проведенный лексикографический и сочетаемостный анализ лексем, вербализующих концепт RISK, позволил выявить ряд концептуальных признаков, образующих разные слои исследуемого концепта, а также продемонстрировал разнообразие терминологических словосочетаний, содержащих лексему risk и участвующих в передаче дополнительных концептуальных признаков. Полученные в ходе исследования результаты дают полное основание рассматривать концепт RISK одним из ключевых концептов сферы страхового права, лежащих в его основе. Дальнейшее исследование концепта RISK будет способствовать расширению теоретических представлений о нем как важном элементе англоязычного юридического дискурса в целом и страхового права в частности, а также повышению эффективности функционирования страхового права.
В статье рассматриваются средства реализации текстовой связности, а также описываются интенциональные нарушения содержательно-смысловых связей в англоязычном библейском тексте. В рамках единства библейской традиции и современных лингвистических теорий определяется принадлежность текста книги “Деяния Святых Апостолов” к нарративному жанру. Данная характеристика произведения дает возможность проанализировать его текстовую структуру в аспекте диктемной теории М. Я. Блоха, согласно которой объединение отдельных предложений в целый текст происходит за счет тематизирующей функции диктемы - элементарной единицы текста. В ходе анализа библейского текста устанавливается, что диктемные связи могут перебиваться за счет смысловых разрывов, нарушений грамматической сочетаемости на уровне слова и предложения, переключения кода, многоголосия в тексте. Результаты исследования позволяют сделать вывод, что многочисленные содержательно-смысловые разрывы в библейском тексте усиливают его информационный потенциал, активизируя когнитивные способности читателей и побуждая их к активному сотворчеству.
В статье исследуется изображение Рязанской земли в шестой части автобиографической книги «Повесть о жизни» КП Паустовского. Южная часть Рязанщины подробно описана в главе «Полевая тишина». Северные болотистые земли почти не изображены в повести, поскольку им была посвящена вышедшая ранее книга «Мещерская сторона». Ключевые мотивы созданных пейзажей сближают написанное ПК. Паустовским со стихотворениями С. А. Есенина. Это подтверждает признание прозаика, что в открытии красоты срединной России он многим обязан Есенину Установлено, что прямые текстовые переклички связывают главы «Повести о жизни» со стихотворениями «Топи да болота…», «Полубень», «Низкий дом с голубыми ставнями…». Непосредственное обращение к этим произведениям происходит после прямого указания на влияние Есенина (глава «Медные подковки»). Писателей также роднит открытое переживание связи с Родиной через ее природу.
В настоящей статье проводится изучение сущности полипарадигмального подхода в контексте туристического дискурса и межкультурной коммуникации. Его актуальность заключается в том, что современным ученым удалось значительно расширить не только рамки исследований в области языка, но и выработать новые подходы к рассмотрению взаимодействия различных языковых систем, что является основой межкультурной коммуникации. Причина выбора туристического дискурса в рамках настоящего исследования обусловлена тем, что он позволяет определить общие закономерности современных дискурсов, особенности сознания его субъектов, а также специфику осуществления межкультурной коммуникации. Цель статьи - определить сущность полипарадигмального подхода к изучению туристического дискурса в межкультурной коммуникации. В работе также раскрывается понятие туристического дискурса, его поли- и интердискурсивности, равно как и следующих подходов к его изучению: когнитивного, прагматического, жанроведческого, компьютерно-опосредованного.
В статье выявляются основные значения образов небесных светил в пьесе М. Себастиана «Безымянная звезда» на основе анализа индивидуальной авторской интерпретации семантики небесных тел. В качестве основной проблемы выступает моделирование художественного мира драматурга, не успевшего создать своей эстетики творчества. Также в статье на основе когнитивного метода рассматриваются образы небесных светил, которые, будучи значимыми составляющими произведения, позволяют раскрыть тему и идею пьесы. Особенностью аспекта предпринятого анализа является то, что в драматическом произведении значение небесных светил раскрывается косвенно. В предпринятом исследовании авторское значение названных в произведении звезд, созвездий, планет и других небесных тел сравнивается с их традиционной семантикой, при этом образ безымянной звезды получает особенно емкое, символическое значение.
В данной статье рассматриваются особенности толкования понятия красоты в русском и французском языках, отражающие динамику семантических изменений ключевых лексем красота и beaute. В результате анализа русских и французских лексикографических источников разных хронологических периодов прослеживается расширение и усложнение понятия «красота», выделяются конкретные объекты и явления, выступающие в качестве эталонов для объективации данного понятия. Устанавливается следующая закономерность: в ранних источниках понятие красоты как в русском, так и во французском языках соотносилось преимущественно с физической красотой и гармонией, в последующие периоды оно становится отражением и внутреннего (нравственного и духовного) совершенства. Определено, что в русской лингвокультуре, по сравнению с французской, красота представляет собой комплексное и многослойное понятие, сочетающее внешние и внутренние качества. Сделан вывод о трансформации понятия на разных этапах его исторического развития. Отмечено, что отдельные признаки понятия красоты в обеих лингвокультурах уходят в прошлое, появляются новые, обусловленные историческими, социально-культурными изменениями, ролью идеалов и символов в конкретной культуре.
В статье представлен теоретический обзор современной научной литературы по проблемам изучения лексических преобразований, происходивших в русском языке в течение 2015-2024 гг. Методом критического анализа отечественных и зарубежных источников выявлены общие тенденции, позволяющие охарактеризовать философско-методологические подходы исследования языковых трансформаций в лингвистике. Значительное внимание уделяется вопросу функционирования языка в цифровой среде в контексте лингвоэкологии. Представлены наиболее значимые пласты лексики с большим объемом заимствований. В заключение отмечается необходимость составления критериев нормированности использования иноязычной лексики в речи различных профессиональных групп. Научная новизна работы состоит в осмыслении причин стремительного изменения словарного состава языка с точки зрения концепций сетевого бытия личности.
В данной статье анализируется образ главного героя повести А. С. Пушкина «Станционный смотритель» Самсона Вырина и способы создания автором эмоциональной выразительности. Особое внимание авторы статьи акцентируют на том, что Пушкина интересуют не только социальные обстоятельства, в которых находится герой, но и эмоциональный настрой его самого и всех, кто его окружает. При этом отмечается перекличка отдельных эпизодов повести с сентиментальными драмами европейской литературы и в то же время несоответствие судьбы героя традиционным жанрам прозаического произведения. В статье подробно рассматриваются роли сюжетных деталей изображения, библейской притчи о блудном сыне и эпилога в раскрытии авторской эмоциональности. Основными выводами проведенного исследования являются следующие. В каждой детали наблюдается осуждение автором существующих общественных нравов, где неповторимая личность превращается в заменяемую вещь, цена которой измеряется деньгами. Пушкин изображает жизнь героев как мир разорванных человеческих отношений. Контраст богатства Дуни и бедности жилья Вырина свидетельствует о разрыве кровных связей самых близких людей - отца и дочери. Автор видит главную причину трагедии, ведущей к гибели «маленьких» людей в равнодушии к чувствам и обидам своих родных и близких. Каждый из участников этой человеческой драмы отстаивает свою любовь, исходя не столько из христианской морали: «возлюби ближнего, как самого себя», сколько из личного житейского интереса.
В статье анализируются различные стилистические приемы, используемые в романе Владимира Набокова «Ада, или Отрада», которые подчеркивают сложность и многослойность произведения. Рассматриваются витальные и мортальные метафоры, которые подчеркивают мастерство автора в работе с семантикой живого и неживого. A также исследуются аллюзии, которые включают литературные, культурные, мифологические и исторические отсылки, обогащающие текст и создающие новые горизонты для интерпретации. Особое внимание уделяется игре слов, где каламбуры, многозначные слова и переводные игры активизируют читательское восприятие и вносят элементы остроумия. Кроме того, нелинейная структура повествования рассматривается как способ, позволяющий В. В. Набокову экспериментировать с темами времени и памяти, создавая динамичное и интригующее чтение. Таким образом, стилистические приемы В. В. Набокова обогащают текст, открывают новые горизонты для интерпретации, позволяют читателю активно участвовать в восстановлении полной картины событий, помогают глубже понять и интерпретировать замысел автора его уникальный стиль и ключевые темы, элементы произведения.
Статья посвящена когнитивно-дискурсивному анализу глагола спасти для конструирования когнитивной модели ситуации спасения в современном русском языке. Выбор глагольной лексемы обусловлен тем, что в основе ситуации лежит пропозиция, которая наиболее часто репрезентируется именно глаголом. На основе анализа данных толковых словарей, контекстов, представленных в Национальном корпусе русского языка, и других интернет-источниках выявляются типовые ситуации, вербализуемые глаголом спасти, далее посредством когнитивно-дискурсивного подхода определяются релевантные свойства рассматриваемой лексемы с учетом выделенных ситуаций. Полученные сведения являются основанием для моделирования ситуации спасения, репрезентируемой на когнитивном уровне в виде сценария. В результате исследования делаются выводы о том, что глагол спасти вербализует ситуацию сохранения жизни, помощи в сложной ситуации, решения психологических проблем. Когнитивные сценарии данных ситуаций варьируются в зависимости от типа дискурса, когнитивно-семантических свойств актантов. Также выявляется, что спасение часто базируется на независящих от воли человека факторах, в том числе имеющих магические истоки.
Настоящая статья посвящена рассмотрению стилистических, структурных и лексико-семантических особенностей функционирования английских идиоматических выражений или фразеологических единиц в экономическом дискурсе СМИ. Основная задача исследования - изучить современные лингвистические подходы отечественных и зарубежных ученых к определению идиоматической фразеологии и проанализировать особенности функционирования английских идиоматических сочетаний в экономическом медиадискурсе, что сделает возможным детализировать элементы анализа экономического дискурса в условиях реальной коммуникативной практики. В статье обобщен опыт российских и зарубежных ученых в области исследования идиоматической фразеологии. Выявлена специфика функционирования фразеологических единиц в экономическом медиадискурсе, и дана интерпретация информации, зафиксированной в этих идиоматических выражениях, с использованием англоязычного экономического медиадискурса. Результаты имеют практическую ценность: их можно использовать в процессе обучения английскому языку для специальных целей в неязыковых вузах экономического профиля.
В статье анализу подвергаются способы именного словообразования в цудахарском диалекте даргинского языка. Предметом исследования являются словообразовательные суффиксы существительных цудахарского диалекта в сравнении с суффиксами литературного даргинского языка, способы словосложения. Целью исследования выступает изучение ранее неисследованных категорий словообразования в цудахарском диалекте даргинского языка. В работе использованы приемы теоретического анализа, описательного метода, структурно-семантического анализа в изучении словообразования имен существительных в системе цудахарского диалекта. Актуальность исследования заключается в том, что разностороннее изучение диалектов предоставляет ценный материал для разработки вопросов истории формирования даргинского языка и диалектологии в целом. В результате исследования выявлены особенности словообразования существительных: диалекту свойственны как собственно-цудахарские суффиксы, собственно диалектные основы, так и некоторые суффиксы, совпадающие с суффиксами литературного даргинского языка. Практическая значимость состоит в том, что результаты могут быть применены для системного изучения грамматики других малоисследованных диалектов даргинского языка.
В статье рассмотрены имена собственные (антропонимы, топонимы, зоонимы, мифонимы), функционирующие в текстах русских и татарских народных сказок, исследование которых помогает выявить особенности национальных культур этносов. Установлено, что имена персонажей, географические названия, наименования животных и различных мифических существ отражают особенности мировосприятия двух народов, способы художественного изображения действительности; могут характеризовать социальную принадлежность персонажей, передавать национальный и местный колорит. Отмечено, что различия в употреблении онимов объясняются своеобразием системно-структурных свойств двух языков, а также культурными представлениями и литературно-фольклорными традициями русского и татарского народов. Исследованы имена собственные, выполняющие в текстах народных сказок эмоционально-экспрессивную функцию, более наглядно представляя сказочных героев, придавая особую атмосферу изображаемой реальности. Указаны имена собственные, отличающиеся способностью обозначать обобщенные наименования однородных предметов (Иван, Емеля, Елена, Василиса, Санду-гач, Магфура, Ахмет, Тац-батыр, Тимур и др.).
Настоящая статья посвящена исследованию явлений эвфемии и дисфемии с позиции смысловой инверсии между ними. Традиционно дисфемизмы и эвфемизмы рассматривались как противоположные друг другу явления, восходящие к понятию «табу». В самом общем понимании эвфемизмы определяются как ресурс, призванный скрыть или смягчить табуированную лексику, а дисфемизм, в свою очередь, используется для усиления негативной смысловой нагрузки табуированных единиц. Тем не менее по мере развития языка в целом и данных явлений в частности они давно вышли за рамки вышеупомянутых функций, вплоть до того, что стали использоваться в прямо противоположных целях. В представленной статье анализу подвергаются случаи использования испанских эвфемизмов с дисфемистическими целями и испанских дисфемизмов, выполняющих эвфемистическую функцию. Материалом исследования послужили художественные произведения испанских и латиноамериканских авторов. Выявленные в литературном тексте случаи эвфемии и дисфемии позволили систематизировать и описать цели использования эвфемизмов и дисфемизмов.
На основании сопоставления, сравнения и соотнесения основных лексических единиц, используемых для репрезентации семантики гендерности, а также привлечения большого объёма фактического материала из азербайджанского, аварского и русского языков устанавливаются основные её способы. Перед этим обосновывается необходимость проведения соответствующих исследований на текущем этапе развития как отечественной и мировой лингвистики, так и общества в целом. Затем для достижения поставленной цели автор настоящей статьи решает четыре исследовательские задачи. Прежде всего, на страницах данного исследования рассматривается проблема проведения разграничения между латентным (скрытым) и структурными, маркированными способами выражения семантики гендерной принадлежности. Далее особое внимание уделено рассмотрению примеров применения первого из этих способов в интересующих нас языках. Выделяются и описываются характерные особенности структурных способов выражения гендерной семантики, существующих в них. В качестве последней исследовательской задачи автором была определена попытка описать наиболее характерные случаи их использования. В статье сделан вывод о том, что различаются два основных способа выражения гендерной принадлежности обозначаемого объекта: латентный, или скрытый, и структурный, или маркированный, внутри которого выделяются две разновидности - морфологическая и синтаксическая. В различных языках каждый из этих способов может быть использован в зависимости от специфики грамматического строя самого языка.
На основании сопоставления, сравнения и соотнесения основных лексических единиц, используемых для репрезентации семантики гендерности, а также привлечения большого объёма фактического материала из азербайджанского, аварского и русского языков устанавливаются основные её способы. Перед этим обосновывается необходимость проведения соответствующих исследований на текущем этапе развития как отечественной и мировой лингвистики, так и общества в целом. Затем для достижения поставленной цели автор настоящей статьи решает четыре исследовательские задачи. Прежде всего, на страницах данного исследования рассматривается проблема проведения разграничения между латентным (скрытым) и структурными, маркированными способами выражения семантики гендерной принадлежности. Далее особое внимание уделено рассмотрению примеров применения первого из этих способов в интересующих нас языках. Выделяются и описываются характерные особенности структурных способов выражения гендерной семантики, существующих в них. В качестве последней исследовательской задачи автором была определена попытка описать наиболее характерные случаи их использования. В статье сделан вывод о том, что различаются два основных способа выражения гендерной принадлежности обозначаемого объекта: латентный, или скрытый, и структурный, или маркированный, внутри которого выделяются две разновидности - морфологическая и синтаксическая. В различных языках каждый из этих способов может быть использован в зависимости от специфики грамматического строя самого языка.
В данной работе перевод просторечий рассматривается как инструмент передачи социальной и национальной специфики, образности и колорита литературного произведения, а также авторского стиля. В исследовании представлена просторечная лексика пьесы (сказки в стихах) Л. А. Филатова «Про Федота-стрельца, удалого молодца», которая классифицирована по своему составу и делится на фонетическую, словообразовательную, морфологическую, семантическую и формально-семантическую. Приводятся продуктивные переводческие приемы, использованные в переводе на английский язык А. С. Вагапова, среди которых ведущими являются стилистическая нейтрализация, опущение, смысловое развитие, использование функциональных аналогов, дополнение, генерализация, конкретизация. В основе исследования лежат методы сплошной и случайной выборки, описательный метод, методы сопоставительного и контекстуального анализа.
В статье исследуются характерные признаки персонификации объектов неживого мира и отвлечённых понятий в поэзии Расула Гамзатова. Прежде всего, внимание уделяется соответствующим моментам при анализе творческого наследия этого выдающегося деятеля дагестанской культуры. Их рассмотрение производится на основании структурного, семантического, описательного и сопоставительного анализов, а также привлечения данных, содержащихся в специальной литературе. Исходя из этого, устанавливаются, например, основные аспекты персонификации предметов неживой природы в творчестве данного поэта. Далее в качестве ещё одной исследовательской задачи автором была определена попытка оценить наиболее характерные черты использования Р Гамзатовым приёма персонификации отвлечённых понятий в элегиях, сонетах, восьмистишиях и обычных стихотворениях. Данные направления дополняются также рассмотрением основных аспектов использования такового применительно к объектам живой природы. Кроме того, выясняется, при помощи каких именно средств поэт реализует этот приём во всех перечисленных случаях.
Просьба является одним из наиболее первазивных и распространенных речевых жанров в различных видах межперсональных и публичных дискурсов. Являясь выражением целеполагания адресанта, она отличается от требования тем, что содержит в себе определенную степень добровольности кооперации для адресата. При этом проявление допустимости той или иной степени добровольности является неизученным вопросом, что и стало основанием для данного исследования. С использованием комплексной методологии, включающей дескриптивный подход, анкетирование, анализ структуры высказывания и сопоставительный подход, удалось классифицировать речевые модели реализации просьбы в русском языке, а также выявить взаимосвязь между речевой моделью и степенью допустимости добровольности следования за целеполаганием адресанта со стороны адресата. Авторы делают вывод о том, что стратегия косвенной просьбы включает в себе шесть видов речевых моделей с разным уровнем ограничения добровольности целеполагания адресата. Степень допущения будет варьироваться в зависимости от вида предложения, наличия эпистемической модальности, выраженной глаголом мочь в разных формах, наличия сослагательной частицы бы и вспомогательного глагола хотеть. Данный вид стратегии в большинстве случаев используется независимо от социального статуса и дистанции между коммуникантами.
В настоящее время когнитивно-прагматическая направленность изучения языка в рамках его восприятия играет одну из главных ролей в лингвистических исследованиях. В связи с этим данная работа нацелена на определение взаимосвязей между прагматическим восприятием высказывания и использованием действительной и страдательной форм залога причастия, наряду с вероятностью его субстантивации. В ходе исследования были использованы корпусный анализ, дескриптивный подход, сравнительный анализ высказываний. Полученные результаты показывают, что при употреблении действительного залога наличие синтаксического субъекта действия, роль которого исполняет семантический субъект, не является важным для прагматического восприятия всего высказывания. При этом в страдательном залоге семантический объект действия, стоящий в позиции синтаксического субъекта, является важным для прагматического восприятия, тогда как действительный семантический субъект играет второстепенную роль. Для страдательного залога причастия характерно следующее: невозможность исключения синтаксического субъекта и отсутствие процесса субстантивации ставят в центр высказывания семантический объект таким образом, что реальное действующее лицо (семантический субъект) не имеет влияния на прагматическую композицию, что может быть использовано в достижении скрытых коммуникативных целей говорящего.
Данное исследование посвящено анализу пространственной организации романа А. Б. Сальникова «Петровы в гриппе и вокруг него» через призму теории социального пространства Анри Лефевра. В работе рассматривается феномен множественности пространственных модусов произведения: отчужденного перцептивного, дифференцированного концептуального и абсурдистского жилого пространств. Исследование демонстрирует, как через призму пространственной организации текста раскрываются фундаментальные экзистенциальные проблемы постсоветского субъекта. Особое внимание уделяется анализу метафорической функции гриппа как катализатора социальной дезорганизации и кризиса идентичности. В работе обосновывается положение о том, что пространственная структура романа отражает комплексную картину социальной реальности современной России, где через призму семейной истории Петровых раскрываются универсальные механизмы социальной дезинтеграции и культурной трансформации постсоветского общества.
Статья представляет собой попытку рассмотреть всевозможные отличительные особенности направительного падежа цураинского говора муиринского диалекта даргинского языка. В данной статье использован синхронный метод. В тех случаях, когда данные исследуемого говора не всегда поддаются однозначному объяснению, использован метод синхронного сопоставления с литературным даргинским языком и другими локальными единицами. В исследовании имеют место описательный и сравнительно-исторический методы. Результаты исследования могут быть использованы в преподавании даргинского языка в школе, при изучении курса даргинской диалектологии в вузе, при составлении учебников и методических пособий по диалектологии, создании сравнительно-исторической грамматики даргинского и дагестанских языков, составлении диалектологического и этимологического словарей даргинского языка. В статье делается вывод о том, что одной из особенностей цураинского говора является противопоставление аффикса направительного падежа -чу форманту литературного языка -чи. Направительный падеж цураинского говора даргинского языка отличается от всех местных падежей многозначностью. Он выступает в функции как чисто местного характера, так и характера выражения различных отношений между именами предметов, не связанных с локальным значением.
Целью данной статьи является исследование лингвистического потенциала редупликации в английском и цахурском языках, которые представляют собой два полярных образца генеалогически, типологически и культурологически разных языков индоевропейской и нахско-дагестанской семей. Выявляются наиболее характерные типы редупликации, устанавливаются общие и специфические формы редупликативов, а также арсенал средств их образования в каждом из сопоставляемых языков. Выбор конкретных методов исследования определяется характером научного исследования и включает использование методов сопоставления, анализа, синтеза и обобщения. В сопоставляемых английском и цахурском языках редупликация главным образом используется в качестве словообразовательного средства. На фономорфологическом уровне в каждом из сопоставляемых языков выявлен арсенал конкретных языковых средств, используемых при образовании редупликативов. В лексической системе сопоставляемых языков редупликативы функционально репрезентируют семантику множественности, а в ряде случаев служат средством варьирования лексического значения, эксплицируя семантику интенсивности, дробности, уменьшительности, габарита, веса, громкости и т. п. В глагольной парадигме в цахурском языке редупликация выполняет также функцию формообразования и служит средством выражения видовой семантики.
В статье обосновывается актуальность проблемы совершенствования самостоятельной работы курсантов в современных условиях. Целью работы является выявление особенностей и разработка рекомендаций по совершенствованию организации самостоятельной работы курсантов в образовательных организациях Министерства внутренних дел России. Уточнены особенности и содержание самостоятельной работы в образовательной деятельности. Обосновано применение синергетического и ситуационно-средового подхода при организации самостоятельной работы для саморазвития обучающихся. Определены направления реализации процесса самостоятельной работы в учебно-воспитательном процессе. Раскрыты условия организации самостоятельной работы обучающихся сотрудников полиции в процессе изучения дисциплин специализации. Предложены рекомендации по организации самостоятельной работы курсантов в образовательных организациях Министерства внутренних дел России. Приведены результаты педагогического эксперимента по внедрению предлагаемого подхода к организации и проведению самостоятельной работы обучающихся.
В настоящей статье предлагается авторская разработка модели и технологии использования учебных кейсов для развития коммуникативной компетенции учащихся при обучении английскому языку в старших классах. Внедрение метапредметной кейс-технологии в образовательный процесс способствует поддержанию высокой мотивации к учению, актуализирует личный опыт учащихся, фокусируясь на развитии практических навыков, необходимых в реальном бытовом общении. Помимо основной направленности на развитие коммуникативной компетенции, кейс-технология в обучении иностранным языкам может быть задействована в отработке грамматических структур, расширении лексического запаса учащихся, совершенствовании аудиальных возможностей. Особенностью кейс-технологии является отсутствие единственно верного ответа, поскольку ключевая задача учащихся в процессе решения кейса - прийти к согласию в команде, в соответствии с чем мягкие навыки (критическое и стратегическое мышление, убеждение, командная работа) совершенствуются не меньше предметных знаний. Выбранная тематика разработанных кейсов соответствует личностным и образовательным потребностям старших школьников.
В статье исследуется взаимосвязь языка и когнитивных процессов, их роль в образовании и практическое применение в преподавании иностранных языков. Когнитивная лингвистика, основанная на принципах мотивированности языковых форм и значений, раскрывает механизмы усвоения языка через концептуальные метафоры, фреймовую семантику и когнитивную грамматику. Принципы Универсального дизайна для обучения предлагают гибкие и инклюзивные образовательные среды, учитывающие разнообразие когнитивных стилей и потребностей обучающихся. Метакогнитивные стратегии, такие как планирование, мониторинг и оценка, способствуют развитию автономии учащихся в изучении иностранного языка. Практическое применение этих принципов включает использование мультисенсорных подходов, рефлексивных заданий, дневников обучения и цифровых инструментов, что позволяет адаптировать учебный процесс под индивидуальные потребности обучающихся. Статья подчеркивает важность создания учебной среды, которая фасилитирует усвоение языковых знаний наряду с развитием способности к саморегуляции и автономному обучению, что становится все более актуальным в условиях современного образования.
Статья посвящена анализу психологических аспектов социализации личности школьника в условиях современного образовательного пространства России с акцентом на процесс формирования и эволюции индивидуальности в контексте глобализационных и социокультурных изменений. Рассматриваются ключевые проблемы, связанные с трансформацией образовательной системы в условиях цифровизации и ускоренных изменений в социально-культурной среде, а также влияние этих факторов на процессы социализации и формирования национальной идентичности. Актуализируется роль психолого-педагогического сопровождения в процессе личностного развития школьников, а также необходимость интеграции традиционных культурных практик и ценностных ориентиров в образовательный процесс. Особое внимание уделено психофизиологическим и социокультурным метаморфозам, происходящим в младшем школьном возрасте, и формированию духовного иммунитета у молодежи как важнейшего условия адаптации к быстро меняющемуся миру. В статье рассмотрены теоретические основы личностно ориентированного подхода, который акцентирует внимание на субъектности школьников, их активной роли в познавательном процессе и важности взаимодействия с педагогом как коммуникативным субъектом.
Авторами рассматривается тема организации комплексного методического сопровождения трудового воспитания детей в едином образовательном пространстве дошкольной образовательной организации и семьи; раскрываются цели, задачи, принципы организации трудового воспитания дошкольников; делается акцент на разработку содержания методического сопровождения данного вида деятельности; характеризуются затруднения родителей воспитанников в организации трудовой деятельности детей и проводится анализ их отношения к вопросам организации трудового воспитания в семье; обосновываются тенденции становления трудовой деятельности в старшем дошкольном возрасте; уточняются различия организации трудовой деятельности детей, включающие параметры позиций общего воспитания и трудового в условиях семьи и детском коллективе дошкольной образовательной организации; приводятся результаты опроса, интервью, анкетирования родителей, детей, педагогов по организации трудового воспитания; определена степень удовлетворенности родителей воспитанников организацией методического сопровождения данного вида деятельности в дошкольной образовательной организации.
Автор статьи рассматривает проблему обучения видам речевой деятельности на примере студентов Финуниверситета направления подготовки «Информационная безопасность» и подчеркивает актуальность умения общаться в контексте диалога культур. В качестве исследовательской задачи автором была определена попытка оценить уровень знаний, навыков и умений обучающихся по 4 видам речевой деятельности, таких как чтение, аудирование, говорение и письмо, объясняются причины полученных результатов и даются методические рекомендации по работе над каждым из них, основываясь на принципах коммуникативной методики. В статье также раскрываются исторически сложившиеся подходы к обучению. Автор акцентирует внимание на важности соблюдения алгоритмов работы по каждому отдельному виду речевой деятельности, подробно рассматривает психолого-педагогические особенности каждого из них, приводит примеры упражнений, которые могут быть использованы при работе с ними. Автор подчеркивает значимость следования методическим рекомендациям, описываемым в работе, мотивируя это тем, что это позволит преподавателю сэкономить время на подготовку к занятиям.
В статье представлены способы создания и дидактические возможности креолизованного текста, направленного на преодоление трудностей в понимании учебной информации иностранными обучающимися. Комбинация вербальных и визуальных компонентов служит средством оптимизации процесса восприятия и понимания содержания специального текста и, как следствие, позволяет сформировать иноязычную коммуникативную компетенцию в профессиональной сфере. В результате метода наблюдения выявлено два типа учебных текстов: тексты с частичной и полной креолизацией. Обучающий потенциал креолизованного текста на занятиях по языку специальности выражается в развитии продуктивных (говорение, письмо) и рецептивных (чтение, слушание) видов речевой деятельности и эмоциональном воздействии на инофона благодаря синтезу зрительных и слуховых образов. Целесообразно отобранные визуальные средства и лексико-грамматические конструкции для их описания способствуют расширению терминологического аппарата обучающегося, формированию коммуникативно-речевых навыков на основе комплекса языковых и речевых заданий.
Статья посвящена одной из актуальных проблем высшего профессионального образования - улучшению качества и эффективности подачи учебного материала на занятиях русского языка как иностранного. Приведено уточнение понятий: «метаморфическая картина», «технология метаморфических картин». Предложена авторская технология метафорических карт как источника социокультурной информации. Выявлено, что эта технология способствует адаптации китайских студентов-магистров к меняющимся условиям восприятия и обработки информации, вовлекает их в современный учебный процесс, повышает их интерес к изучаемой дисциплине. В свете современных реалий раскрыты преимущества использования технологии метаморфических картин. Научная новизна состоит в том, что технология метаморфических картин внедрена в учебный процесс. Результаты исследования показали, что использование технологии метаморфических картин способствует развитию иноязычной социокультурной компетенции китайских студентов-магистрантов.
В подготовке инженеров, экономистов, специалистов IT-сферы одно из центральных мест занимает математическая подготовка. При этом важным залогом успешного изучения математики в вузе является освоение базовых понятий школьной математики. В статье проводится оценка сформированности базовых знаний (на примере темы «Векторы») у первокурсников различных направлений подготовки как необходимого условия формирования математических компетенций при обучении в вузе. Для достижения цели исследования авторы выявили элементы содержания темы в различных школьных учебниках, проанализировали достаточность объема и разнообразия задачного материала и на этой основе соотнесли результаты выполнения заданий по теме «Векторы» на ЕГЭ-2024 (профильный уровень) с предъявляемыми требованиями к результатам освоения основной образовательной программы. Было обнаружено некоторое рассогласование между содержанием и уровнем сложности заданий и заявленными метапредметными результатами, которые они должны проверять. Обработка результатов проведенного среди первокурсников тестирования показала, что есть определенные статистические различия в уровне усвоения знаний по теме «Векторы» студентами различных направлений подготовки, что следует учитывать школьным учителям математики при подготовке обучающихся, а также преподавателям математических дисциплин в вузах.
В настоящее время значительно повысились требования, предъявляемые к высшему образованию в целом и к иноязычному в частности. Современная методика преподавания иностранных языков требует нового подхода к организации занятий в высшем учебном заведении. Оптимизация учебного процесса, прежде всего, предполагает применение инновационных технологий, эффективных методов обучения и формирование универсальных учебных действий. Предметом данного исследования является современный урок иностранного языка в вузе. В статье проводится анализ содержания и организации урока иностранного языка. Предлагается классификация и типология уроков. Рассматриваются характеристики и критерии, которым должен соответствовать урок иностранного языка в заведениях высшего образования. Автор также анализирует нестандартные форматы уроков (например, конкурсы, экскурсии, ролевые игры, дискуссии и т. д.) и возможности их использования в процессе обучения. Урок нестандартного формата по английскому языку может быть дополнен использованием информационно-коммуникационных технологий, которые являются важной особенностью современного урока по иностранному языку в вузе.
В основе проектной деятельности лежит формирование у студентов познавательных способностей, умение создавать собственные умозаключения, а также формирование креативного и творческого мышления. Метод проектов дает возможность делать процедуру обучения интересной, очень увлекательной и по этой причине крайне эффективной. В статье рассматриваются методы генерации идей в условиях проектной деятельности студентов. В ходе эксперимента реализован творческий проект, выполнение которого предполагало дизайн-мышление: выполнение заданий по их расшифровке и трактовке, самостоятельную творческую работу, использование орнаментов обских угров в практической деятельности для украшения предметов быта. Экспертная и независимая оценки в ходе опытно-экспериментальной работы подтвердили эффективность примененной методики. Результаты исследования указывают на то, что эффективность реализации проектной деятельности во многом определяется гибкостью подхода к обучению, применяемыми методиками и созданными условиями образовательной среды, способствующими формированию положительного отношения студентов к предлагаемым образовательным проектам.
В статье исследуются педагогические аспекты подготовки студентов-магистрантов в современной коммуникативной среде, отмеченной глобальной цифровизацией и активным развитием новых медиа. Авторы подчеркивают необходимость адаптации высшего образования к меняющимся медиапотребностям молодежи и преобразованиям в сфере информационных технологий. Анализируются особенности восприятия современных коммуникационных процессов студентами-магистрантами и функционирование новых связей между коммуникатором и реципиентом. Выявляются негативные тенденции, связанные с глобальной цифровизацией и активным использованием электронных и цифровых технологий, влияющих на образовательный процесс. Особое внимание уделяется синергетическим характеристикам, влияющим на принятие решений участниками коммуникации. Авторы рассматривают причины возросшей потребности молодежи в профессиональном саморазвитии и самообразовании, а также значимые мотивационные тенденции, связывающие студентов с будущей профессиональной деятельностью. Научная новизна работы заключается в системном исследовании взаимодействия студентов-магистрантов с образовательной средой в условиях цифровой коммуникации. Практическая значимость состоит в возможности применения результатов исследования при разработке учебных программ и методических материалов, способствующих эффективной подготовке специалистов, адаптированных к требованиям современного информационного общества.
Данная статья посвящена исследованию влияния социальных факторов студенческой жизни на ценностные установки и поведенческие паттерны учащихся вузов в условиях традиционного и онлайн-форматов обучения. Цель работы - выявить ключевые механизмы и тренды трансформации ценностно-поведенческих моделей студенчества под воздействием социальной среды университета в разных образовательных контекстах. Методология исследования включает комплексный анализ эмпирических данных (опросы студентов, интервью с преподавателями и экспертами), а также теоретический анализ актуальных научных публикаций. Результаты демонстрируют значимость таких социальных факторов, как академическая культура вуза, интенсивность коммуникаций, вовлеченность в университетскую жизнь. Выявлены различия в ценностях и поведении студентов традиционной и онлайн-форм обучения. В дискуссионной части обсуждаются перспективы дальнейших исследований и практические импликации полученных результатов для совершенствования образовательной политики и социокультурной среды вузов.
В данном исследовании изучается влияние группового сотрудничества и индивидуальной рефлексии в музейном квесте в виртуальной реальности на культурную компетенцию и личностный рост. Цель исследования - определить, повышает ли совместное обучение, включающее групповые обсуждения и коллективное принятие решений, культурную осведомленность и использование языка по сравнению с интроспективной индивидуальной рефлексией, осуществляемой с помощью заданий по ведению записей. В общей сложности 54 участника (25 индивидуальных и 29 групповых) приняли участие в музейном VR-квесте, где они взаимодействовали с культурно значимыми произведениями искусства. В исследовании использовался смешанный метод, включающий анкетирование до и после квеста, структурированные наблюдения и оценку работы преподавателя ассистентами. Для сравнения показателей культурной компетентности и личной связи между двумя группами были проведены независимые и парные t-тесты. Результаты показали, что индивидуальные участники продемонстрировали больший личностный рост и более глубокие культурные связи, в то время как участники группы продемонстрировали несколько более высокие показатели культурной компетентности благодаря совместным обсуждениям. Полученные результаты подчеркивают важность баланса между социальным взаимодействием и индивидуальной рефлексией в учебных средах на основе виртуальной реальности для достижения высоких результатов в культурном и лингвистическом обучении.
В данной статье рассматривается понятие онлайн-курса по иностранному языку столь востребованного в последнее время в связи с переходом системы образования на новый цифровой формат Актуальность исследования обусловлена также необходимостью формирования электронной образовательной среды для вузов и создания цифрового контента, отвечающего дидактическим требованиям высшей школы. В статье анализируется практический опыт применения онлайн-курса по английскому языку, внедренного в экосистему Ростовского государственного университета путей сообщения. Основное внимание в работе автор акцентирует на педагогических принципах, лежащих в основе методической разработки онлайн-курсов, направленных на овладение обучающимися всеми необходимыми компетенциями и повышение мотивации к изучению иностранного языка. На основе анализа результатов применения онлайн-курса по английскому языку установлены его преимущества. Среди них доступность, мобильность, экономия времени и ресурсов, интерактивность, геймификация, что свидетельствует об эффективности их применения в образовательной экосистеме любого вуза в разных формах обучения: очной, заочной, смешанной и даже дистанционной.
Автор статьи привлекает внимание к очень важной составляющей высшего образования - к преподаванию иностранного языка в профессиональной сфере. Автор данной статьи обобщает исследования в данной области и представляет свой собственный авторский научно-методический подход, который включает следующие составляющие: создание учебников по иностранному языку для каждого направления обучения; подготовка преподавателей иностранного языка в профессиональной сфере для каждого направления обучения; активизация как аудиторной, так и внеаудиторной деятельности обучающихся; определение структуры и содержания проведения практических занятий с акцентом на профессиональный контент; оценка и самооценка учебной деятельности студентов. Автор полагает, что исследования теоретических и практических аспектов в преподавании иностранного языка в профессиональной сфере необходимо конкретизировать по каждому направлению обучения в высшем учебном заведении.
Статья освещает проблемы освоения профессионально ориентированной иноязычной лексики, с которыми сталкиваются преподаватели и студенты неязыковых вузов. Процесс освоения лексики, связанной с будущей профессией учащихся, является более трудоемким, чем процесс освоения базовой иноязычной лексики, поскольку он имеет специфические сложности, недостаточно отраженные в методической литературе в настоящее время. Целью исследования является разработка новых стратегий для преодоления сложностей в освоении студентами профессионально ориентированной лексики. Автор статьи также приводит примеры применения указанных стратегий на основе современных цифровых образовательных сервисов. Кроме этого, в статье даны подробные рекомендации по нейтрализации возможных недостатков разработанных автором стратегий, влияющих на эффективность процесса обучения. Поскольку информационные образовательные технологии постоянно обновляются, предложенные в статье стратегии имеют большой потенциал развития и могут быть дополнены и расширены в процессе дальнейших исследований.
Статья посвящена осмыслению морально-нравственных ценностей современного общества с позиций концептуализации русской национальной картины мира. Авторы акцентируют внимание на проблеме ценностных ориентиров такого сегмента российского населения, как молодое поколение, являющегося будущим нашей страны. Предмет изучения составляет морально-нравственный потенциал личности будущих педагогов, определяемый на основе результатов проведенного среди студентов направления обучения «Педагогическое образование» исследования. Цель статьи заключается в выявлении и анализе ценностных ориентиров студентов педагогического вуза. В статье используются методы описания, анализа и сопоставления данных, выявленных в ходе анкетирования бакалавров 2-3 курсов. Материалы исследования носят ярко выраженный практико-ориентированный характер и могут быть полезны педагогам при построении учебно-воспитательной работы в школе и вузе.
Данная статья представляет собой обзор исследований зарубежных авторов, направленных на изучение внедрения основных положений позитивной психологии в процесс изучения и преподавания иностранных языков и выявление влияния таких негативных аффективных факторов, как проявление страха и тревожности, на продуктивность развития языковых навыков студентов. Автором статьи был проведен анализ влияния позитивной психологии на развитие прикладной лингвистики в последние десятилетия, а также проанализирован практический опыт применения принципов позитивной психологии в процессе изучения и преподавания иностранных языков. Особое внимание в статье уделяется развитию уровня эмоционального интеллекта преподавателя, от которого зависит создание благоприятной, психологически комфортной среды обучения, способствующей раскрытию потенциала обучающихся благодаря снижению уровня тревожности и повышению уровня удовольствия, получаемого от процесса изучения иностранного языка. На основе проведенного анализа разработаны практические рекомендации для преподавателей иностранных языков.
В статье рассматривается роль наставничества в процессе профессионального становления студентов высших учебных заведений. Анализируется значение наставнической деятельности в процессе формирования у студентов необходимых профессиональных компетенций, личностных качеств и навыков, способствующих успешной адаптации в профессиональной среде после окончания университета. Рассматриваются различные модели наставничества, их особенности и эффективность в зависимости от специфики учебного заведения и профиля подготовки. В статье представлены успешно реализуемые модели наставнической деятельности на примере нескольких высших учебных заведений России. Выводы исследования показывают, что грамотно организованная система наставничества способствует повышению уровня профессиональной готовности студентов и их конкурентоспособности на рынке труда.
В статье рассматривается формирование адаптивной парадигмы инклюзивного образования в контексте цифровой образовательной экосистемы высшего учебного заведения. Раскрывается значение методологических подходов: системно-структурного, антропоцентрического, компетентностного, проективного, аксиологического и социопрагматического в проектировании инновационных образовательных стратегий, ориентированных на реализацию инклюзивных процессов. Анализируются механизмы организации информационно-образовательной среды, включающей цифровые платформы, средства коммуникации и медиаресурсы, способствующие диалогичной и коллаборативной динамике. Особое внимание уделяется важности системной интеграции принципов педагогической дифференциации, адаптивности и консультативного влияния, а также необходимости гибко реагировать на изменяющиеся условия образовательной парадигмы. Приводятся аргументы в пользу непрерывного совершенствования компетентности педагогов, разворачивающих инклюзивную модель. Подчеркивается существенная роль проектного подхода и синергетической коллаборации всех участников учебного процесса для обеспечения устойчивости и эффективности инклюзивного образования.
В статье актуализируется важная проблема социально-психологической и педагогической поддержки пожилых граждан в трудоустройстве с позиций предоставления выбора направлений профессиональной деятельности как в социальных организациях народно-прикладного творчества, так и вопросов самозанятости посредством профессионального обучения и повышения квалификации. Обозначается роль профессиональной подготовки студентов направления «Социальная работа в период производственной педагогической практики» в «Центре социальной помощи пожилым гражданам и инвалидам» г. о. г. Арзамас в работе с пожилым людьми и освоения курса «Педагогика» для непедагогических специальностей, реализуемой на психолого-педагогическом факультете Арзамасского филиала ННГУ, которая играет важную роль в формировании профессиональных компетенций будущего специалиста. Студенты выступают в роли волонтеров в период обучения и оказывают социальное служение людям. В контексте изучения научной литературы зарубежных и отечественных ученых авторы приходят к выводу, что проблема по своей значимости актуальна и требует дальнейших исследований. Студентами совместно с руководителем практики предложена социально-ориентированная программа «Возраст - делу не помеха: новые возможности для каждого», определены этапы ее реализации, множество форматов и методов, применяемых в ней для продления социальной активности граждан старшего возраста, снижения социальной напряжённости в обществе и повышения уровня их жизнедеятельности, формирования профессиональной мотивации, повышения имиджа пожилых людей как ценностной и продуктивной части субъектов на рынке труда. Выделенные методологические подходы: индивидуальный, сетевой, кросс-секторальный, аксиологический обеспечивают научность исследования. Этапы реализации социально-ориентированной программы: ознакомительный, информационно-образовательный, профессионально-ориентированный, аналитическо-продуктивный раскрывают суть процесса социально-психологической и педагогической поддержки граждан пожилого возраста в их трудоустройстве. Сформулированные критерии эффективности реализации программы «Возраст - делу не помеха: новые возможности для каждого» раскрыты через ряд конкретных параметров, а выделенные социально-психологические и педагогические условия реализации программы позволяют организовать процесс обучения и переобучения пожилых людей с учетом их психологических характеристик и требований современного рынка труда под руководством опытных наставников, «серебряных волонтеров» и студентов-волонтеров более продуктивно. Исследуемый материал позволяет сделать вывод, что представленная программа имеет актуальный образовательный и социально-психологический аспект, помогает снизить социальную усталость, раскрыть потенциал, улучшить качество жизни пожилых людей через освоение новых компетенций.
В статье рассматриваются основные достижения, трудности, а также перспективы обучения китайскому языку россиян в современной геополитической ситуации. В России наблюдается бум изучения китайского языка, однако методологических, методических и практических ресурсов для этого недостает, несмотря на активно предпринимаемые шаги российских и китайских специалистов в этой области. Авторы статьи изучают конкретные шаги, которые предприняты в России для удовлетворения спроса на изучение китайского языка: анализируются мотивы изучения китайского языка россиянами, психологические барьеры, препятствующее изучению китайского языка; обосновывается необходимость пересмотра когнитивных основ методики обучения китайскому языку, так как он относится к совершенно отличному от русского языка типу, опоры на родной язык и культуру при изучении китайского языка; кратко анализируются достижения в области онлайн-обучения китайскому языку россиян. Авторы статьи приходят к выводу о том, что необходимо пересмотреть методологическую базу и когнитивные основы методики преподавания китайского языка в России, расширить информационно цифровое взаимодействие между Россией и Китаем, разработать образовательные стандарты подготовки специалиста китаеведа в России и расширить комплекс культурно-просветительских мероприятий между двумя государствами.
Целью научного исследования является проектирование компьютерных технологий для развития профессиональных иноязычных возможностей студента. Актуальность этой проблемы обусловлена противоречиями в сфере проектирования и внедрения компьютерных технологий в профессиональную подготовку специалистов портовых и грузовых терминалов. Основные противоречия ведут к решению проблемы обоснования и разработки методологии проектирования компьютерных технологий подготовки как взаимоувязанной совокупности концептуальных положений и практических методов проектирования электронного обучения. В данном научном исследовании сформулированы основные противоречия: наличие информационных обучающих программ и отсутствие методов гарантированной реализации этого потенциала; целесообразность оперативного взаимодействия преподавателя и компьютерных средств обучения (КСО) и отсутствие алгоритмов такого взаимодействия; широкая компьютеризация обучения и слабая представленность педагогических аспектов ее проектирования.
Целью научного исследования совершенствования языковой компетенции курсантов неязыковых вузов является применение электронных образовательных ресурсов, создающих обратную связь в процессе решения ситуационных задач будущей профессиональной деятельности, сопряженной с иноязычным общением. Различные формы аудио, видео учебной информации, реальные макеты, аутентичный текстовый материал, интерактивные упражнения, тренажёрная база, учебно-тренировочные комплексы профилирующих кафедр для обработки лексических единиц военно-морской тематики создают обучающимся условия полного погружения в языковую среду с целью совершенствования иноязычных коммуникативных навыков. Следует отметить, что интегрирование освоенных лексических единиц информации, рекомендуемых стандартными фразами международной морской организации для взаимопонимания в процессе коммуникации, помогают принимать единственно правильные решения по вопросам профессиональной военно-морской деятельности. Безусловно, осуществление международных поисково-спасательных операций, гуманитарной поддержки, борьбы с пиратами при прохождении торговых судов опасных зон, так же как и многие другие проблемы международного сотрудничества, проведения совместных учений и обмена информацией военного характера, расширят границы взаимодействия.
Освоение фонетико-фонологических навыков русского языка иностранными студентами может представлять особую сложность, вызванную богатой ритмической организацией русского языка. В связи с этим анализ существующих учебных пособий в отношении их эффективности для обучения студентов, ритмическая структура родного языка которых значительно отличается от русского, имеет особенную важность. В данной работе нами были рассмотрены разделы трех учебных пособий, нацеленных на освоение фонетико-фонологических навыков с применением комплексной методологии, включающей в себя дескриптивный, классификационный и сравнительный подходы. Было выяснено, что из трех проанализированных учебников, два являются наиболее подходящими для обучения студентов, ритмическая структура родного языка которых значительно отличается от русского, тогда как третий учебник больше подходит для обучения студентов, родной язык которых по ритмической структуре принадлежит или близок к славянской группе. После проведения комплексного анализа учебного материала и упражнений, включающего в себя дескриптивный, классификационный и сравнительный подходы, нами было выяснено, что наиболее подходящими для использования со студентами с отличиями в ритмической организации родного языка стали учебники М. Н. Харловой и И. Гобзовой.
На основе изучения научно-методической литературы, а равно рефлексии собственного педагогического опыта авторов устанавливается специфика цифрового имиджа (ЦИ) педагога, осуществляющего деятельность в условиях современной организации высшего образования, действующей на территории Российской Федерации. Речь идёт о том, что в современных условиях его развитие является чрезвычайно важным в смысле повышения эффективности работы вузов. Уточняется содержание понятий «имидж» и «цифровой имидж» применительно к преподавателю высшей школы. Значительное внимание уделяется характеристике основных особенностей процесса формирования этой характеристики у педагогического работника, занятого в данной сфере. На основании исследования соответствующих аспектов авторами выделяются наиболее значимые условия, способствующие повышению его эффективности. Демонстрируется связь между спецификой развития данного показателя у современного преподавателя, с одной стороны, и его структурной характеристикой - с другой.
В рамках данной статьи предметом исследования является всесторонний анализ молчаливого (немого) метода преподавания иностранных языков «Молчаливый путь». Автором даётся оценка текущих трендов в обучении иностранным языкам. Статья содержит критический анализ немого метода, включая историю его возникновения, сильные, слабые стороны данной методики. Одновременно статья содержит данные исследований эффективности метода для развития различных типов речи. В заключение автор приводит оценку возможности имплементации немого метода в рамках курса иностранного языка в неязыковом вузе на примере Финансового университета при Правительстве РФ. Автор делает вывод о том, что «Молчаливый путь» представляет собой оригинальный метод обучения иностранным языкам. Можно отметить, что исследуемый метод может быть эффективен в гомогенных группах, в которых требуется добиться минимальных результатов в короткие сроки. В то же время эффективность метода «Молчаливый путь» в гетерогенных группах вызывает сомнения. В условиях неязыковых вузов необходимо учитывать специфику и требования учебного процесса, что может ограничить применение данного метода в его чистом виде. Автор не выявил перспектив практической имплементации метода «Молчаливый путь» в рамках неязыкового вуза, учитывая сложности, связанные с изучением профессионально ориентированной лексики.
Исследование посвящено проблеме разработки эффективной системы оценки уровня профессиональной готовности будущих учителей начальных. Цель работы - изучение и анализ эффективных подходов в оценки уровня профессиональной готовности будущих учителей начальных классов. Методология исследования включает такие подходы, как системный, аксиологический, гуманистический, личностный критериально-уровневый и компетентностный. Основные результаты показывают, что эффективная система оценки должна быть комплексной и многомерной, учитывающей не только предметные знания, но и педагогические умения, личностные качества и ценностные ориентации будущих учителей. Системный подход интегрирует оценку в более широкий контекст подготовки, аксиологический - фокусируется на ценностных основах профессии, гуманистический - на индивидуальном развитии каждого будущего учителя. Личностный и критериально-уровневый подходы оценивают уровень владения ключевыми компетенциями. Компетентностный подход делает акцент на практических навыках и умениях. Научная новизна заключается в том, что исследование выявило ряд ключевых факторов, влияющих на эффективность системы оценки: ясность и прозрачность ее критериев; достоверность и надежность инструментов оценки; обратная связь и поддержка и интеграция оценки в учебный процесс. Практическая значимость заключается в том, что полученные результаты могут служить основой для дальнейших исследований эффективных подходов в оценки уровня профессиональной готовности будущих учителей начальных классов и разработки практических рекомендаций по оптимизации оценки уровня профессиональной готовности в системе высшего образования.
В данной статье рассматривается проблема, связанная с тем, какую роль обучение студентов - будущих преподавателей иностранного языка может играть в процессе развития у них эмоционального интеллекта. На основе изучения научной психолого-педагогической литературы устанавливается суть дефиниции «эмоциональный интеллект». Значительное внимание уделяется и некоторым особенностям структуры обозначаемого ею феномена. Далее определяется то значение, которое эмоциональный интеллект имеет в профессиональном портрете выпускника современного вуза, в том числе педагогического. Изучается влияние освоения программ по иностранному языку на развитие его компонентов. Характеризуются некоторые трудности, могущие возникнуть при формировании эмоционального интеллекта будущих педагогических работников с использованием такого рода средств. Авторами предложены некоторые педагогические инструменты, способствующие, на их взгляд, минимизации соответствующих затруднений. Приводятся также некоторые общие рекомендации, способствующие повышению эффективности применения вышеуказанных инструментов.
В статье изучен процесс формирования иноязычной коммуникативной компетентности (ИКК) студентов, раскрыты лексико-грамматические аспекты ее формирования; определены эффективные технологии и принципы формирования ИКК. Выявлено, что без знания лексики и грамматики видится невозможным решать коммуникативные языковые задачи, и, наоборот, освоение грамматики происходит на базе уже знакомой лексики. Сделан вывод о том, что формирование ИКК - это сложный и многогранный процесс, который зависит от различных факторов. Для эффективного управления этим процессом необходима комплексная работа, включающая в себя работу со студентом в рамках учебной и внеучебной деятельности, методическую работу с преподавателями, анализ существующих методических материалов, создание новых пособий и рабочих листов, анализ материально-технического обеспечения образовательной организации, учет таких факторов, как мотивация обучающегося и дополнительное образование.
Данное исследование посвящено тому, как использование англоязычных площадок, применяемых для реализации сторителлинга, помогает развитию коммуникативности и креативности у студентов вузов неязыковых специальностей при изучении английского языка как иностранного. В рамках данной работы было проанализировано три крупных англоязычных сайта, посвященных созданию и распространению историй - Kialo Edu, Tell a Story и Storium, а также рассмотрены различные виды сторителлинга в зависимости от реализуемых в них коммуникативных и нарративных аспектов. В качестве методов исследования были применены критический дискурс-анализ, контент-анализ и критический нарративный анализ. Результаты исследования показали, что разнообразные площадки и виды сторителлинга требуют от студентов различного уровня использования креативности. При этом было доказано, что работа со сторителлингом и предназначенными для этого площадками способствует усиленному развитию коммуникативности и креативности студентов.
Второе десятилетие XXI века проходит под знаком видимых последствий технологической революции и социальных изменений. Трудности с заполнением учебных мест в системе среднего профессионального образования (СПО), необходимость усиления профессиональной ориентации влияют на формирование новых решений внутри системы среднего профессионального образования. Актуальные проблемы внедрения дуальной системы образования и возможные пути их решения становятся импульсом для реконструкции профессионального образования в России, связанной с необходимостью изменения и адаптации профессионального образования к потребностям рынка труда, повышением качества системы профессионального образования, приобретением навыков трудовой деятельности непосредственно у работодателей в рамках так называемого дуального образования. В статье делается вывод о том, что одной из основных проблем при реализации дуальной модели обучения является финансовое обеспечение ресурсов, используемых при проведении занятий в заведении СПО, приобретение необходимого оборудования, его обслуживание и ремонт. Эффективность профессиональной подготовки, независимо от используемых организационных решений, требует пополнения оборудования каждые несколько лет в эпоху быстрых технологических изменений.
В статье рассматриваются современные тенденции развития информационных технологий в финансовой среде. Влияние цифровизаци и цифровой трансформации экономики на методику преподавания специальных дисциплин экономического профиля в высшем учебном заведении. Раскрываются вопросы применения игровых методик обучения в учебном процессе. Обозначена роль и значение геймификации в системе высшего образования, методы ее внедрения, планируемые результаты применения игровых методик в педагогической практике. Для более глубокого понимания исследуемой темы дано определение игры-симулятора, дана характеристика образовательных возможностей экономических симуляторов, представлены наиболее подходящие, по мнению авторов, экономические онлайн-симуляторы. Определены сходства и различия функционирования виртуальной и реальной экономики. Намечены перспективы дальнейшего использования коммерческих игр в обучении финансистов.
На основании анализа ряда наименований научной и методической литературы, а также привлечения собственного педагогического опыта автора банк тестовых заданий рассматривается как действенный инструмент, правильное применение которого позволяет эффективно контролировать ход и результаты процесса формирования иноязычной компетенции у лиц, осваивающих экономические специальности. Во вводной части статьи изучаются некоторые особенности функционирования человеческого общества на современном этапе. На основе их исследования доказывается необходимость интенсификации обучения будущих экономистов иностранному языку, а значит, и внедрения в педагогическую практику современных форм контроля. Далее в статье анализируется сущность дефиниции «иноязычная компетенция» применительно к учащимся и выпускникам вузов интересующего нас профиля. Автор также даёт обобщённую характеристику ключевых компонентов, составляющих её структуру. Приводится определение термина «контроль сформированности компетенции». Выявляются основные преимущества банка тестовых заданий как одного из его средств и приводятся их примеры.
В данной научной публикации автором предложен библиографический анализ научной литературы современных авторов, исследования которых так или иначе связаны с понятием «межкультурная коммуникативная компетенция». Посредством последовательного и тщательного изучения рассматриваемой научной литературы статья преследует цель разобраться в вопросах, связанных с определением межкультурной коммуникативной компетенции на примере подготовки будущих специалистов в туристической индустрии. Этот педагогический процесс автор публикации исследует на примере обучения студентов иностранным языкам. В данном случае анализируются наработки отечественных авторов, изучающих заявленный вопрос, как в контексте высшей школы, так и среднего специального образования. Работа позволяет выявить сильные и слабые фрагменты заявленного научного кластера, посредством этого ответить на актуальные вопросы современной педагогической науки и идентифицировать «белые пятна» в данном научном направлении. Привлеченный к предлагаемой работе библиографический список научной литературы автор презентует в виде двух подгрупп: работы, посвященные особенностям подготовки и обучения будущих специалистов туристической индустрии, а также исследования, причастные к особенностям подготовки будущих менеджеров гостиничного хозяйства в контексте овладения ими межкультурной коммуникативной компетенцией.
В статье рассматривается внедрение технологий дополнительной реальности на базе Google Glass в образовательный процесс. Автор анализирует ключевые преимущества, такие как интерактивность, доступ к информации в реальном времени и возможность создания иммерсивного опыта для студентов, что способствует повышению мотивации и вовлеченности в изучение языка. В то же время отмечаются недостатки, включая высокую стоимость устройства, а также возможные отвлекающие факторы для студентов. Даются рекомендации по оптимальному использованию Google Glass для изучения иностранных языков. К ним относятся сбалансированное использование, выбор качественных приложений, постановка четких целей, регулярная практика. Статья подчеркивает важность сбалансированного подхода к внедрению новых технологий в обучение и предлагает рекомендации для эффективного использования Google Glass в процессе изучения иностранного языка. Автор делает вывод о том, что использование Google Glass в изучении иностранного языка предоставляет возможность интегрировать обучение в реальную жизнь, повышая мотивацию и эффективность, а также развивая ключевые языковые навыки в интерактивном и увлекательном формате.
В статье в качестве центральной рассматривается проблематика преподавания иностранного языка посредством онлайн-досок. В условиях современной модернизации образования актуальность выбранной темы предопределяется вопросами учебного процесса, смещающими его акцент в сторону дистанционного образования. В данной статье представлена практика перехода к онлайн-обучению, обусловившая необходимость внедрения опыта использования различных интерактивных ресурсов (включая онлайн-доски, организованные на базе платформы MIRO). В этом исследовании рассмотрены способы фактического использования указанного ресурса, определены его преимущества и слабые стороны, акцентируется внимание на эффективности и потенциале их применения в современном образовательном процессе. Итоги проведенной работы обеспечиваются оценкой научных трудов теоретического и методологического характера, анализом специфики контента практических занятий, реализуемых в рамках вузов. Отдельный фокус сосредотачивается на сложностях подготовки совместной учебной работы с учетом особенностей обучения иностранному языку в высших учебных заведениях. Подчеркивается, что применение онлайн-досок выступает в качестве способа усиления мотивации студентов к обучению ИЯ, что, в свою очередь, свидетельствует о высоком потенциале последующего применения данного инструмента в различных условиях образовательного процесса.
Современный образовательный процесс часто характеризуется стремительным развитием технологий и методик обучения, что, в свою очередь, может привести к дисбалансу между умственным и физическим развитием детей. В статье представлена авторская гипотеза образовательного адаптоза - состояния, при котором происходит рассогласование когнитивного и соматического развития у детей, вызванное особенностями современной образовательной практики. Исследование основывается на анализе современных образовательных процессов и их влияния на физическое и психическое развитие детей. В работе используется метод качественного анализа для выявления причин и следствий образовательного адаптоза. Автор вводит понятие «когносомный принцип», под которым понимается интеграция когнитивных и соматических процессов в обучении. Для подкрепления гипотезы автором был разработан тезаурус концепции гармонизующего образования и описаны её основные принципы. В результате анализа автор приходит к выводу о необходимости внедрения концепции гармонизующего образования как средства профилактики образовательного адаптоза. Предложенные автором методики и принципы предполагают учет слитности психических и физических процессов и направлены на обеспечение телесного сопровождения познавательной деятельности, что способствует более гармоничному развитию личности ребенка.
В статье раскрывается сущность, структура и функции профессиональной компетентности учителей естественно-научного цикла в области дистанционного обучения, которая включает психолого-педагогическую, методическую, организационно-управленческую, рефлексивную и ИКТ компетенции. Для достижения поставленной цели использовались системный и деятельностный подходы, а также комплекс теоретических методов, включающий анализ, синтез, обобщение, систематизацию и моделирование. Проведен ретроспективный анализ внедрения феномена дистанционного обучения в современную образовательную систему. Уточнена взаимосвязь между понятиями «компетентность» и «компетенция». Разработана и обоснована структурно-функциональная модель профессиональной компетентности учителей физики, химии и биологии в области дистанционного обучения, включающая когнитивный, деятельностный и мотивационно-личностный блоки. Полученные результаты могут быть использованы для модернизации образовательных программ на уровне среднего профессионального и высшего образования, программ повышения квалификации и профессиональной переподготовки педагогических работников, а также для разработки диагностического инструментария оценки уровня сформированности вышеуказанной компетентности.
Формирование любви к родному краю, понимание ее, познание окружающего с ее помощью социального бытия и совершенствование себя требует продолжительных временных затрат Результативность реализации данного процесса зависит от качества его осуществления, использования общих средств обучения в образовательных организациях различных уровней. Такой целостности можно достичь при сохранении единых подходов к категории «любовь к родному краю». Актуальность исследования определяется необходимостью разработки данного понятия в связи с тем, что образование детей и учащейся молодежи в России является национальным приоритетом, направленным на формирование поколения молодых людей, обладающих такими личностными качествами, как любовь и гордость за свою родину, ответственность за ее судьбу, уважение к культуре и традициям своего и других народов страны и мира. В статье приводятся результаты междисциплинарного научного анализа понятия «любовь к родному краю», выявляется сущность категории «любовь к родному краю» и обосновывается значимость формирования любви к родному краю у детей и учащейся молодежи как явления образовательной практики. Представленный материал может быть использован в образовательных учреждениях для разработки методических материалов, предназначенных для успешного формирования любви к родному краю у детей и учащейся молодежи в современной образовательной практике.
В данной статье раскрывается содержание и специфика организации самостоятельной работы студентов-первокурсников колледжа, анализируются проблемы, которые существенно осложняют их внеаудиторную подготовку к практическим занятиям по истории. Проведен обзор научной литературы, и раскрыто содержание деятельности преподавателей истории на этапах планирования и организации самостоятельной работы студентов. Особый акцент сделан на описании тех видов и форм самостоятельной внеаудиторной работы, которые обеспечивают их качественную подготовку к практическим занятиям по истории. Представлены выводы о необходимости целенаправленной систематической педагогической работы по оказанию помощи студентам в овладении ими умениями и навыками самостоятельной внеаудиторной работы при подготовке к практическим занятиям по истории, которая включает в себя методику изучения проблем и трудностей первокурсников при подготовке к практическому занятию и помощь преподавателя в их решении. Предложенные в статье рекомендации и предложения могут быть полезны преподавателям истории и других общеобразовательных дисциплин для оказания квалифицированной помощи студентам-первокурсникам системы среднего профессионального образования для решения возникающих у них проблем и трудностей в процессе самостоятельной работы.
Дискуссия представляет собой эффективный метод обучения иностранному языку в непрофильном высшем учебном заведении. При помощи этого образовательного метода можно научить студентов критически мыслить, приводить аргументы, а также стимулировать их быть более вовлеченными в учебный процесс. В статье приводятся примеры исследований, доказывающих эффективность дискуссий и их оправданность как педагогического подхода. В ходе данного исследования было также выявлено два важных аспекта влияния активного вовлечения студентов в обсуждение учебного материала, а именно пробуждение интереса к иностранному языку и развитие коммуникативных навыков. Кроме того, дискуссии помогают сделать рабочую атмосферу более непринужденной, доброжелательной, способствующей активному обмену идеями и мнениями. Автор делает вывод о том, что преподавание иностранных языков в неспециализированных университетах требует многогранного подхода, учитывающего разнообразные потребности и происхождение студентов. Сосредоточившись на практических навыках, актуальных для их будущей карьеры, эффективно используя технологии и стимулируя мотивацию с помощью увлекательного контента, преподаватели могут улучшить процесс обучения и подготовить студентов к успешному общению в профессиональной жизни.
В данной статье рассматривается проблема повышения эффективности иноязычной подготовки, реализуемой в стенах нелингвистического вуза, в условиях цифровой трансформации системы высшего образования и жизни общества в целом. Прослеживаются основные направления реализации процесса обучения иностранному языку лиц, осваивающих неязыковые направления подготовки. Выделяются и описываются характерные особенности системы педагогических условий, соблюдение которых позволит максимально эффективно реализовывать соответствующие направления в пространстве современных отечественных вузов. Автором предложены также и дидактические задачи, решение которых будет способствовать воплощению данных условий на практике. После этого формулируются наиболее существенные образовательные результаты, могущие быть достигнутыми по завершении организованного таким образом процесса формирования иноязычной коммуникативной компетентности у студентов-нелингвистов. Также в работе речь идёт об информационных ресурсах, которые могут быть с успехом применены при осуществлении такой деятельности.
В статье рассматривается понятие «семейная культура» с педагогического и социологического подходов, а также в контексте двух дефиниций: «семья» и «культура». Актуальность исследования определяется тем, что в большинстве случаев современные семьи не имеют своих определенных ценностей, своей семейной культуры, передающихся из поколения в поколение. Данные противоречия вносят диссонанс не только в духовное, эмоциональное развитие ребенка, но и оказывают влияние на интеллектуальное развитие. В статье определены аналитические умения у детей, их влияние на формирование дальнейших аналитических навыков, необходимых на следующих ступенях обучения и социальной жизни в целом. Приведены аналогии влияния семейной культуры на развитие аналитических умений у детей, а также описаны практические методы, способствующие развитию этих умений в рамках семейной культуры. В выводах определено влияние семейной культуры на развитие аналитических умений у детей.
В ходе бурного развития нейронных сетей и больших языковых моделей, которое привело к новой технологической революции, стремительно меняются все сферы нашей жизни, включая образование. Развитие искусственного интеллекта ставит новые задачи, связанные с влиянием технологий на рынок труда, необходимостью переквалификации кадров, решения этических вопросов, изменения подходов к обучению. Искусственный интеллект не заменяет преподавателя, но повышает производительность и эффективность его работы, позволяет автоматизировать простые рутинные задачи и освобождает время для решения наиболее важных вопросов, личного взаимодействия со студентами, повышения их мотивации. Авторы представляют результаты исследования на основе принципов системного, деятельностного и аксиологического подходов, проведённого в 2023 и 2024 годах в МГИМО МИД России, в ходе которого была изучена научная литература по теме, дан анализ современных инструментов искусственного интеллекта, используемых в образовании, а также организован онлайн опрос студентов и преподавателей и полуструктурированные интервью с педагогами, реализующими образовательные программы при помощи инструментов искусственного интеллекта. Студенты и преподаватели выразили своё отношение к нейросетям и готовность к использованию инструментов искусственного интеллекта в образовательном процессе. Дан анализ причин, препятствующих использованию нейронных сетей в образовании, и факторов, способствующих внедрению новых технологий. Также авторы предлагают способы использования потенциала искусственного интеллекта в современном иноязычном образовании для повышения цифровой грамотности студентов, их обучения использованию искусственного интеллекта как инструмента для решения задач в будущей профессиональной деятельности и подготовки специалистов, отвечающих требованиям современной цифровой экономики. Авторы оценили риски применения нейросетей в учебном процессе и предложили меры по их минимизации.
Автор стремится проследить влияние возможностей современных облачных технологий и сервисов на ход и результаты реализации программ иноязычного образования в пространстве современного неязыкового вуза. В статье раскрываются основные аспекты влияния цифровизации на сферу высшего образования, в том числе ход и результаты обучения студентов нелингвистических направлений иностранным языкам. Определяется, какую роль играют облачные технологии и сервисы в подобных процессах. В качестве следующей исследовательской задачи автором была определена попытка оценить их основные потенции при установлении связи между участниками педагогического процесса. Затем изучаются преимущества соответствующих цифровых средств при реализации различных форм текущего и промежуточного контроля. Выделяются и описываются характерные особенности применения подобного рода технологий в научно-исследовательской деятельности студентов неязыкового вуза, направленной на формирование знаний, умений и навыков, необходимых для эффективного иноязычного общения в профессиональной сфере. Ближе к концу исследования выясняется, каково может быть их значение при организации самостоятельной работы обучающихся.
Автор настоящей статьи обращает внимание на необходимость применения универсального подхода к обучению иностранным языкам при помощи проектной деятельности. В статье приводятся причины, которые усиливают целесообразность применения единого подхода на всех уровнях образования при обучении иностранным языкам. Автором изучены общие направления научных подходов, которые прослеживаются в педагогике в последние годы в связи с применением в образовательной среде проектной подхода. В целях демонстрации перспективности применения единого подхода в рамках проектной деятельности автором представлена модель обучения иностранному языку с учетом включения различных мероприятий и развития одновременно ряда компетенций. К предложенной модели прилагается содержательное обоснование на примере всех уровней образования. Автор делает вывод о том, что предложенная модель может быть адаптирована на всех уровнях образования, что является ее главным преимуществом в качестве универсального решения для педагогов, стремящихся углубить знания обучаемых и подготовить их к дальнейшей коммуникации на иностранном языке.
В эпоху быстрого развития технологий искусственного интеллекта образование становится одним из ключевых секторов, который интенсивно внедряет и использует эти технологии. Новые методы обучения с использованием возможностей искусственного интеллекта трансформируют образовательный процесс. Авторы делают вывод о том, что современная школа становится лабораторией будущего, активно внедряя цифровые технологии в учебный процесс, стремясь не только следовать за течением времени, но и создавать условия для эффективного обучения, отвечающего потребностям современного обучающегося. В статье рассматривается влияние технологий искусственного интеллекта как инновационного подхода на образовательные практики, открывающего новые горизонты для общего образования в целом, раскрываются возможности интеграции искусственного интеллекта в образовательную сферу, которые способствуют организации эффективного учебного процесса и выстраиванию необходимых коммуникаций.
В рамках данной статьи рассматривается проблематика психоэмоциональной устойчивости преподавателя иностранного языка как фактора эффективности профессиональной деятельности. В изменяющихся условиях реальности, которая все больше характеризуется неоправданностью, неустойчивостью и повышающимися интенсивностью и уровнем стресса, обращается внимание на роль психоэмоциональной устойчивости в деятельности преподавателей иностранного языка, на ее место в русле профессионально значимых качеств преподавателей иностранного языка. В ходе проведенного экспериментального исследования и статистического анализа данных делается вывод о том, что для эффективности педагогической деятельности развитие данного параметра является необходимым условием. Анализ данных, полученных в ходе имитационного моделирования, позволяет сделать вывод о том, что психоэмоциональная устойчивость как параметр представляет собой сложную структуру взаимозависимостей, где психоэмоциональная устойчивость является ядром, а компоненты психоэмоциональной устойчивости - кластерными группами, связанными как друг с другом, так и с психоэмоциональной устойчивостью. У данной связи нет четкой и устойчивой структуры, пространство взаимосвязей индивидуально для каждого испытуемого даже при наличии определенных закономерностей. Это указывает на то, что для преподавателя иностранного языка развитие рассматриваемого параметра должно быть индивидуальным.
Статья посвящена комплексному исследованию основных потенций, связанных с широким использованием инновационных форм и методов при работе с курсантами современного военного вуза. Для достижения этой цели рассматривается ситуация, сложившаяся в России и мире на протяжении последних десятилетий. На этом основании делается вывод о том, что действующая система высшего военного образования должна быть глубоко реформирована с целью сохранения эффективности подготовки конкурентоспособных офицерских кадров. Затем в статье речь идёт о сущности терминов «инновация» и «инновационный» применительно к теории и практике функционирования соответствующего сегмента отечественной образовательной системы. Выделяются основные особенности интеграции инноваций в учебную деятельность. Автор даёт обобщённую характеристику попадающих под эту категорию форм и методов реализации учебной работы, применение которых представляется целесообразным по ходу освоения курсантами академических дисциплин. В статье также анализируются организационно-педагогические условия, способствующие их эффективному использованию.
Актуальность данной статьи заключается в том, что высшее профессиональное образование в период постмодернизма сталкивается с новыми вызовами. Изменяется процесс получения знаний: доступность информации и сомнение в ее достоверности приводят к ухудшению ее запоминания. Для преподавателя становится актуальным пресечение негативных проявлений конфликтов и отсутствия мотивации к получению знаний у студентов, для иноязычного образования это, прежде всего, выражается в необходимости создания прочной связи между интересами студента и методами языкового образования. Для реализации данных возможностей при формировании целей, содержания и ценностей языкового образования стоит учитывать изменения, происходящие в процессе получения знаний под влиянием постмодернизма. Авторы констатируют, что для адекватного освоения педагогами специфики постмодернизма целесообразно разработать программу психолого-педагогического сопровождения, которая подразумевала бы освоение краткого спецкурса и освоение принципов постмодернистского образования, актуальных для современного российского иноязычного образования.
Подготовка врача-специалиста в высшем учебном заведении является одной из приоритетных задач государства для поддержания здоровья населения и качества жизни общества в целом. В данной статье был сделан анализ подходов, положительно зарекомендовавших себя в мировой и отечественной образовательной практике. Автором показаны возможности реализации данных подходов в процессе подготовки врачей-стоматологов в медицинском вузе. В качестве наиболее эффективного автором рассматривается компетентностно-деятельностный подход. В русле данного подхода преподаватель должен создать ряд психолого-педагогических условий, способствующих качественному усвоению каждым обучающимся заданного объёма знаний, что выражается в создании схем ориентировки, представляющих собой образовательный результат, которого должны достигнуть все студенты в результате профессиональной подготовки. Автор делает вывод о важности овладения преподавателями как общемедицинских, так и стоматологических кафедр психологической, психолого-педагогической, педагогической и андрагогической областями знаний, применения основанных на них новейших методологических подходов и технологий в преподавании своих дисциплин, необходимости разработки учебных материалов с учётом актуальных требований педагогической науки.
Интеллектуальные состязания прочно вошли в современные образовательные практики, что обуславливает пристальное внимание к ним в рамках компетентностного подхода. Школьники и студенты принимают участие в интеллектуальных соревнованиях по различным дисциплинам, демонстрируя как универсальные компетенции, так и глубокие знания по отдельным трекам. Современное общество характеризуется конкурентным характером взаимоотношений, природа которых кроется как в свойствах личности, так и определяется борьбой за ресурсы. Актуальность нашего исследования преломляется в необходимости осознанного и здорового отношения к состязательным мероприятиям в рамках образовательного процесса в отечественной традиции. В статье рассматривается структура состязательной компетенции, сам термин впервые вводится в научный дискурс педагогической направленности, что составляет научную новизну представленного исследования; цель - обоснование наличия трех компонентов (знания, умения/навыки, качества), которые формируются и развиваются средствами олимпиадного движения. Использованы теоретические методы - анализ научной литературы, моделирование. Среди эмпирических методов - полуструктурированные интервью с дипломантами студенческих олимпиад (10 информантов) и преподавателями-наставниками (7 информантов), представителями Московского государственного института международных отношений Министерства иностранных дел Российской Федерации. Теоретическая значимость преломляется в введении нового термина в педагогическую науку и возможности проведения дальнейших квалиметрических исследований, направленных на повышение эффективности отечественного конкурсного движения.
В статье представлен авторский подход к проектированию интерактивного метода профессионального обучения на основе деловых игр с применением модели виртуальной учебной компании, позволяющий повысить уровень профессиональной подготовки студентов высших образовательных учреждений. Показано, что в процессе профессиональной подготовки студентов важнейшее значение приобретает интерактивная форма обучения на основе виртуальных учебных компаний, позволяющих осуществлять имитацию реальных производственных отношений и формировать у студентов практические навыки профессиональной деятельности. Осуществлено структурно-логическое моделирование учебного процесса на основе интерактивных деловых игр с применением модели виртуальной учебной компании. Проведённые исследования позволили авторам сформулировать технологию разработки, планирования и проведения интерактивной деловой игры по модели виртуальной учебной компании. В её основу положена соответствующая алгоритмизированная модель и необходимая процедурная схема организации и управления учебным процессом в высших образовательных учреждениях. Технология деловой игры по модели виртуальной учебной компании апробирована и показала свою эффективность в плане укрепления и активизации у студентов междисциплинарных связей для решения разнообразных задач, связанных с функционированием виртуальной учебной компании.
В статье рассматриваются проблемы профессионально ориентированной иноязычной подготовки студентов высшей школы (в частности бакалавриата) с учетом трендов в образовательной среде, а именно - цифровизации образовательного пространства вузов России. Перечислены достоинства, которые могут быть взяты за основу при выборе инструментов для формирования и развития навыков трех видов речевой деятельности при обучении студентов по дисциплине «Иностранный язык в профессиональной сфере»: чтение, аудирование, письмо. Проанализированы такие концепты профессионально ориентированного обучения, как «готовность», «подготовка» и «профессионализм». Даны практические рекомендации по внедрению и осознанному отношению обучаемых к данным аспектам их учебной активности и будущей профессиональной деятельности.
В данной статье рассматривается проблема эффективного использования Chat GPT в ходе преподавании иностранного языка студентам, осваивающим экономические специальности в пространстве современного вуза. На основании анализа собственного опыта автора, а также привлечения данных, транслируемых научной и методической литературой, исследуется текущее состояние системы высшего экономического образования. Доказывается необходимость интенсификации обучения иностранному языку лиц, осваивающих соответствующее направление подготовки. Далее конкретизируется содержание понятия «нейросеть». Статья также посвящена детальному анализу сущностной характеристики такого характерного примера данной категории, как Chat GPT. Значительное внимание уделяется и рассмотрению конкретных возможностей, существующих сегодня для его применения при обучении иностранному языку будущих экономистов в условиях современной организации высшего образования, действующей на территории Российской Федерации. В заключение раскрываются некоторые проблемы и риски, связанные с расширением использования указанной модели в интересующей нас сфере, а также возможные пути их минимизации.
В данной статье на основании анализа научной и методической литературы, а также привлечения собственного опыта авторов освещаются некоторые аспекты эффективного использования новейших методов обучения в ходе профессиональной подготовки студентов современных медицинских вузов. Для этого нами было решено пять исследовательских задач. В качестве первой из них была определена попытка изучения ключевых факторов, оказывающих влияние на современную медицину и, следовательно, подготовку кадров для неё в условиях организаций высшего образования. Затем решалась задача, связанная с рассмотрением наиболее существенных особенностей представителей того поколения, к которому сегодня относится большинство лиц, обучающихся в вузах соответствующего профиля. В связи с данными обстоятельствами авторами была поставлена и решена третья задача - предложить современные методы организации учебной работы, характеризующиеся, на их взгляд, максимальной эффективностью. Также в статье идёт речь об основных требованиях к грамотной реализации соответствующих методик. С их выявлением была связана четвёртая задача. Пятая же заключалась в том, чтобы определить основное содержание деятельности педагогических работников, осуществляющих профессиональную деятельность в условиях современного медицинского вуза.
Целью данного исследования является разработка технологии формирования лексической компетенции у студентов языковых факультетов с использованием платформы и приложения TED TALKS в качестве эффективного инновационного инструмента. Глобальные образовательные тенденции современного постмодернистского общества бросают вызов традиционным ценностям и определяют главенствующую и самостоятельную роль обучающегося в процессе освоения знаний, навыков и умений в ходе обучения разноплановым дисциплинам, что затрагивает в том числе и образование в сфере иностранных языков. Привычная передача знаний «от учителя к ученику» заменяется на автономность в обучении, самообразование и саморазвитие в процессе реализации персонализированных задач при движении по индивидуальному образовательному маршруту в рамках личностно ориентированного подхода. Цифровые технологии в свете глобальной модернизации, информатизации и цифровизации российского образования формируют абсолютно новое образовательное пространство, в котором всеобъемлюще реализуется образовательный потенциал внедрения инноваций в сферу обучения иностранным языкам, что определяет актуальность поиска новых методов и форм, создания методологически обоснованных технологий обучения иностранным языкам на базе онлайн-контента, изучение которого представляется возможным только при условии адекватного уровня сформированности лексической компетенции каждого обучающегося, что определяет главенствующую роль обучения лексике как важнейшему компоненту всех видов речевой деятельности. В рамках данного исследования была разработана и апробирована технология формирования лексической компетенции у студентов языковых факультетов с использованием уже зарекомендовавшей себя в образовании и самообразовании платформы TED TALKS (включая мобильное приложение), которая предоставляет пользователям увлекательный и полезный контент для освоения и совершенствования языковых и речевых навыков и умений, формирования различных компетенций в составе иноязычной коммуникативной компетенции.
В статье указаны отдельные аспекты формирования компетенций обучающихся при подготовке следователей в высших учебных заведениях, взаимосвязь использования методов обучения в образовательном процессе для использования знаний, умений и навыков выпускниками при выполнении обязанностей в практической деятельности следователей в зависимости от их подследственности. В образовательной организации обучающиеся должны получить знания о нормативно-правовых актах, регламентирующих их уголовно-процессуальную деятельность в досудебном производстве, с целью реализации способности применения их в деятельности следователя; получить умения проведения следственных действий в досудебном производстве, анализа собранных доказательств, их проверки и оценки в уголовно-процессуальной деятельности; получить навыки по принятию в должности следователя законных решений при проведении расследования уголовных дел, а также иметь способности по профессиональному составлению процессуальных документов в досудебном производстве. Автор делает вывод о том, что существует взаимосвязь между применением преподавателями конкретных методов обучения в учебном процессе и формированием у следователей компетенций, которые необходимы для проведения предварительного следствия по уголовным делам.
В статье обсуждается концепция «Новых гуманитарных наук», анализируется ограниченность традиционной системы подготовки специалистов с высшим образованием, рассматривается проблема создания системы подготовки одаренных специалистов в китайском вузе в контексте развития «новых гуманитарных наук». В наши дни требуются студенты-выпускники, имеющие междисциплинарные знания, инновационное мышление и практические навыки. Подготовка таких кадров осуществляется посредством реформирования образования, предполагающего регулирование и обновление учебных программ, внедрение инновационных методов и технологий в процесс обучения, реализацию интегрированной модели «промышленность - университет - исследования» в организации учебного процесса, формирование команды преподавателей, а также оптимизацию структуры и содержания подготовки специалистов. В статье также обосновывается важность подготовки высококвалифицированных специалистов международного уровня для развития экономики и общества Китая. Авторы приходят к выводу о необходимости параллельного воплощения ряда мер, рассматриваемых в статье, а также о значимости адаптивного характера формируемой системы высшего образования.
В данной статье обсуждаются новые возможности обучения студентов английскому языку связанные с модернизацией технических средств и более широким их применением в вузе с целью совершенствования форм и методов преподавания. Наибольший интерес представляет использование аудиовизуальных средств как наиболее наглядных, информативных и создающих обстановку благоприятную для активного изучения иностранного языка. Практика показывает, что данная стратегия содействует развитию коммуникативных компетенций, в частности, навыков говорения и аудитивных способностей у обучающихся. В статье обсуждаются достоинства аутентичных видеоматериалов и их значение для развития иноязычной коммуникативной компетенции у студентов. В исследовании также определены и проблемные вопросы, связанные с восприятием аудиовизуальной информации, и рассматриваются способы их решения. Видеоматериалы стали неотъемлемой частью обучения иностранному языку, и работа с ними требует дальнейшей методической разработки. Применение аудиовизуальных материалов на регулярной основе погружает студентов в аутентичную среду позволяющую им лучше понять чужой язык и культуру тем самым делая процесс обучения более эффективным.
В статье рассматривается изменение технологической экосистемы современных молодых людей в связи с быстрыми трансформациями в технологическом ландшафте. Приводится статистика 2024 года главных трендов медиапотребления россиян в области видео, мессенджеров, соцсетей, игр и e-com. Показано различие поведения в цифровой среде «цифровых аборигенов» и «цифровых иммигрантов». Перечислены положительные стороны использования социальных сетей в разных сферах жизнедеятельности современной молодежи. Отдельное внимание уделяется рискам, которые несут в себе соцсети. Приводятся результаты исследования о подверженности молодежи деструктивному контенту. Намечены пути формирования стратегии антропологической безопасности для нейтрализации киберрисков, которая объяснит ключевые угрозы и риски благополучию социума и человека в условиях цифровизации и позволит расширить понимание стратегии информационной безопасности. Данная модель должна создаваться и реализовываться в первую очередь через систему образования.
Данная статья посвящена описанию практических результатов применения метода проектов в процессе обучения иностранному языку на уровне среднего профессионального образования в вузе. Приводятся результаты анкетирования обучающихся по направлениям среднего профессионального образования в Башкирском государственном аграрном университете. Несмотря на то, что проектная деятельность практикуется на всех ступенях образования, начиная со старшей школы, многие студенты не имеют навыка подготовки результатов исследования в виде проекта. Метод проектов нацелен на индивидуализацию образования, с одной стороны, и выработку навыка групповой работы - с другой. Раскрываются возможности проектной деятельности на занятиях по иностранному языку, позволяющие обучающимся применять накопленные языковые знания в речи, развить не только языковые и речевые, но также и коммуникативные компетенции. Исследование базируется на положении о том, что проект - это от души выполняемый замысел на основе личного интереса студента, направленный на повышение мотивации к изучению иностранного языка.
Статья посвящена теоретическому анализу и экспериментальной проверке эффективности трансдисциплинарного подхода в подготовке будущих педагогов в условиях цифровой трансформации образования. В исследовании выделены ключевые трансдисциплинарные компетенции, необходимые для решения сложных междисциплинарных задач. Модифицированная учебная дисциплина «Методика обучения и воспитания» была разработана с акцентом на интеграцию знаний из смежных дисциплин. В ходе формирующего эксперимента, включающего контент-анализ компетенций и актуализацию учебного материала, была проведена оценка эффективности подхода на основе контрольного среза результатов у экспериментальной и контрольной групп студентов. Статистический анализ показал значимо более высокие результаты в экспериментальной группе, обучающейся по трансдисциплинарной программе. Полученные данные подтвердили гипотезу о положительном влиянии трансдисциплинарного подхода на успеваемость и развитие ключевых компетенций у будущих педагогов, что подчеркивает необходимость его дальнейшей разработки и внедрения в образовательный процесс для повышения качества подготовки специалистов. Исследование открывает перспективы для дальнейшего изучения различных методических подходов и педагогических технологий в контексте трансдисциплинарности.
Существует множество работ, посвященных способам повышения мотивации учащихся высших учебных заведений. Авторы статьи рассматривают проблемы, возникающие среди мотивированных студентов в процессе обучения. Как показывают результаты проведенного эксперимента, главной причиной подобных проблем является некорректный подход ведущего данный предмет преподавателя. В ходе исследования приводились интервью у студентов, посвященные разнообразным конфликтам с преподавателями, которые привели к нежеланию изучать предмет вплоть до смены специальности. Наряду с этим описываются случаи профессионального поведения преподавателя, в результате которого была устранена психологическая проблема студента, препятствующая его обучению. Каждый случай уникален и требует отдельного анализа. В статье представлены выводы и предлагаются возможные пути решения проблемы.
Сегодня языковые кафедры вузов достаточно активно занимаются вопросом верификации содержания образования с учетом последних вызовов времени, требований государства и рынка труда. Установлено, что разработчики последнего Федерального государственного образовательного стандарта высшего образования рекомендуют вузам опираться на трудовые функции специалиста, верифицированные в Профессиональном стандарте, в ом числе при разработке образовательных треков по учебным дисциплинам. Поэтому целью настоящего исследования выступило изучение специфики конструирования образовательного трека по английскому языку специальности для будущих юристов с опорой на их трудовые функции. Автор статьи представляет накопленный опыт конструирования такового на примере Финансового университета г. Москва. Анализ научных работ педагогов-исследователей и накопленного педагогического опыта преподавания языка специальности позволил установить, что в ходе конструирования образовательного трека возможно опираться на четыре трудовые функции юриста, заявленные в Проекте профессионального стандарта «Юрист», содержательную составляющую которых следует отражать как в содержании трека, так и при верификации подходов (компетентностный и CLIL) и методов обучения языку. Приводятся фрагменты занятий по языку, раскрывающие содержание трудовых функций юриста, с опорой на метод проектов, метод «перевернутого класса», «Moot court», кейс метод и IRAC метод. Полученные результаты свидетельствуют об эффективности проделанной работы в исследуемой области и позволяют наметить возможные перспективные направления развития в обозначенной области, в частности: открытие актуальных направлений подготовки обучающихся вузов, релевантных последним тенденциям развития рынка труда и т. д.
В данной статье рассматривается роль культурно-исторической теории в развитии личности ребенка. Целью работы является анализ теоретического изучения организации дошкольного образования на основе культурно-исторического подхода. В данной работе раскрываются методологические ресурсы культурно-исторической теории Л. С. Выготского в контексте развития личности дошкольника с учетом культурных особенностей современного дошкольного образования для развития высших психических функций. Изучение личности дошкольника является главным инструментом его полноценного развития на личностном уровне. Обосновывается множество научных методов, позволяющих провести диагностику выявления линий развития ребенка: наблюдение, тестирование, генетическое исследование и др. Основополагающим направлением является взаимодействие субъектов образовательного процесса (родители, педагоги, обучающиеся) в совместной деятельности в зоне развития, устремленной на формирование теоретического мышления у дошкольника. В завершении работы определено, что воспитание и развитие ребенка в современной дошкольной образовательной среде в рамках методологических основ культурно-исторической теории Л. С. Выготского должно реализовываться в сотрудничестве с педагогами и детьми в контексте выявления трудностей в процессе реализации развивающего образовательного пространства.
В статье раскрывается проблема обучения говорению на иностранном языке и влияния в данном процессе эмоционального компонента на эффективность и результативность обучения. В настоящее время дисциплина «Иностранный язык» рассматривается как предмет, направленный на формирование и воспитание культурно-оформленной личности, способной мыслить на языке, принимать решения в критических ситуациях при общении с представителями других культур на иностранном языке. В связи с этим в обучении иностранному языку чрезвычайно актуальна проблема развития речевого компонента коммуникативной компетенции обучающихся. В этом смысле обучение говорению как виду речевой деятельности выходит на первый план, так как оно является одним из интерактивных способов коммуникации, определяемым реальной средой в режиме реального времени, то есть необходима четкая формулировка высказывания на иностранном языке без предварительной подготовки. В рамках образовательного процесса довольно сложно воссоздать подобную языковую среду. В исследовании мы рассматриваем особенности процесса обучения умениям говорения у обучающихся с уровнем владения английским языком А2 (согласно данным Общеевропейской компетенции владения иностранным языком (CEFR)), а также способы оптимизации данного процесса с помощью апробации эмоционального компонента в разработанной программе обучения.
Стратегический анализ Калининградского отделения «Движения Первых», проведенный для определения стратегический альтернативы взаимодействия с системой образования, показал, что организация, созданная в 2022 году, демонстрирует позитивную динамику роста числа участников и разнообразие направлений деятельности. Однако несмотря на успешное привлечение участников и поддержку со стороны государства, организация сталкивается с высоким уровнем конкуренции и угрозами со стороны аналогичных детских общественных объединений. Проведенный PEST-анализ выявил, что политические факторы, такие как государственная поддержка, оказывают положительное влияние, в то время как технологические и социальные факторы создают определенные вызовы, включая низкую информированность о деятельности организации и существующие стереотипы. Внутренний анализ с использованием SNW-метода показал, что организация имеет сильные стороны, такие как широкий ассортимент проектов и компетентных сотрудников, но также сталкивается с проблемами, включая высокую текучесть кадров и недостаточную маркетинговую активность. SWOT-анализ позволил выделить стратегические альтернативы, направленные на улучшение имиджа, развитие уникальных проектов и активизацию взаимодействия с родительским сообществом. В целом для успешного развития «Движения Первых» необходимо сосредоточиться на повышении уникальности проектов и улучшении внутренней среды, что позволит организации укрепить свои позиции на рынке детских общественных объединений.
Образование в сфере экологической безопасности является важнейшей задачей современности, и его необходимо активно осуществлять в вузах нашей страны. В связи с этим в статье автором уточняются понятия «культура безопасности», «культура экологической безопасности»; представлены результаты диагностического исследования обучающихся в сфере экологической безопасности; проанализировано содержание дисциплины «Экологическая безопасность в сохранении и укреплении здоровья» (дисциплина разработана на факультете безопасности жизнедеятельности Российского государственного педагогического университета имени А. И. Герцена на кафедре методики обучения безопасности жизнедеятельности). Также в работе определены содержательные линии формирования культуры экологической безопасности у студентов педагогического вуза, отмечены педагогические условия эффективности процесса формирования культуры экологической безопасности, представлены перспективы дальнейшего исследования.
В данной статье исследуется эффективность использования инфографики в качестве педагогического инструмента при обучении иностранному языку для лучшего понимания и запоминания учебного материала, повышения мотивации и вовлеченности студентов в процесс обучения. Инфографика использовалась на занятиях для формирования и развития грамматических навыков и навыков устной речи. Также студентам предлагалось создать свою собственную инфографику на основе учебных текстов и материалов. В статье анализируются преимущества применения данного инструмента и сложности, с которыми можно столкнуться. В качестве метода исследования был выбран качественный в виде опросов и интервью. Результаты проведенного исследования показали положительные результаты. Можно сделать вывод, что использование инфографики способствует созданию более увлекательной и интерактивной среды обучения. При правильном подходе инфографика облегчает и улучшает эффективность обучения иностранному языку, развивает творческое и критическое мышление, повышает заинтересованность, вовлеченность и общую удовлетворенность студентов в процессе обучения.
В статье рассматривается креативность как одна из характеристик творческой деятельности руководителя (дирижёра) оркестра русских народных инструментов. Цель - выявление путей формирования креативности у студентов - будущих руководителей инструментальных коллективов, обучающихся в вузе культуры. На основе анализа философских, культурологических, музыковедческих трудов и изучения деятельности известных российских дирижёров в контексте современных художественно-культурных тенденций автору удалось определить различия между творчеством и креативностью, изучить специфику особой профессиональной разновидности креативности и тем самым значительно развить общепринятые суждения касательно особого качества творческого руководства инструментальными коллективами. Применение комплексного подхода позволило сделать принципиально новые выводы относительно существенных сторон креативности - творческой и прагматической, выступающих в работе руководителя оркестра русских народных инструментов в тесном единстве. Исходя из данной посылки, автор по-новому сформулировал стратегическую цель вузовского профильного обучения студентов, обучающихся по музыкально-инструментальным дирижёрским специальностями, представив её как как воспитание чувства оригинального стиля. Важными результатами также стали: определение модели профильной мотивации обучения будущих оркестровых руководителей, целостное рассмотрение педагогических направлений по формированию креативности, которые ранее другими исследователями рассматривались разрозненно и бегло. Данное исследование имеет важное значение для дальнейшей разработки проблемы креативности в ракурсе особой компетенции современного руководителя инструментального коллектива.
В статье раскрывается проблема использования образовательных технологий в процессе подготовки студентов педагогического вуза к осуществлению деятельности по ранней профилактике противоправного поведения несовершеннолетних на примере технологии кейсов. Дается описание технологии обучения студентов созданию кейсов по ранней профилактике противоправного поведения школьников. Данная технология позволяет вовлечь студентов в решение поставленной проблемы, осмыслить свою роль и место в осуществлении профилактики. В статье дается анализ этапов внедрения технологии кейсов в процесс обучения в вузе, в рамках которых будущие педагоги не только анализируют проблемы, предлагают способы их решения в предложенном преподавателем кейсе, но и создают на основе личной педагогической практики собственные кейсы. Результаты проведенного исследования позволяют сделать вывод, что использование технологии кейсов не только в контексте решения, но и его создания способствует включению обучающихся в процесс собственного образования, где они обмениваются опытом, создают образовательные смыслы, что повышает не только деятельностный, но и мотивационный компонент подготовки к осуществлению ранней профилактики противоправного поведения школьников.
Статья посвящена комплексной проблеме, связанной с необходимостью учета результатов проектной и исследовательской деятельности школьников во взаимодействии общего и дополнительного образования. Определено понятие «учет индивидуальных достижений школьника в образовании». Разведены понятия «достижение» и «успех», поставлена задача разработки системы учета достижений не только одаренных учащихся, но индивидуального прогресса каждого ученика. Представлены краткие результаты обзора отечественной и международной практики организации проектной и исследовательской деятельности и форм учета достижений школьников. Приведены результаты эмпирического исследования состояния проблемы в практике работы организаций общего и дополнительного образования по их отражению на сайте как значимом элементе образовательной системы, а также имеющихся практик с помощью проведения фокус-групп с учителями школ и педагогами дополнительного образования. Раскрыто состояние основных аспектов проблемы: организация проектной и исследовательской деятельности, взаимодействие общего и дополнительного образования, формы учета достижений школьников; выявлено отсутствие взаимосвязи между этими аспектами в практике работы образовательных организаций. Обоснована необходимость учета не только «высоких достижений» одаренных школьников, но и отслеживания прогресса каждого ребенка. В перспективы исследований выделено более четкое определение цели, задач проектной и исследовательской деятельности, конкретизация ее ожидаемых результатов в виде компетенций, отражающих готовность к различным видам деятельности, способность к решению задач определенного уровня. Для этого необходимо дополнить количественные методы отслеживания прогресса и достижений качественными методами. Это позволит не только отслеживать формирование тех компетенций, ради которых и была введена проектная деятельность, но и получить полноценную картину индивидуального развития ребенка, увидеть его перспективы и скорректировать его образовательный маршрут.
Статья посвящается проблеме развития волевых действий младших школьников. Описывается актуальность вовлечения детей в трудовую деятельность посредством практических умений в плане достижения предметно-манипулятивных целей. Целью исследования является проверка эффективности развития волевых действий младших школьников в условиях кружковой работы. Для достижения цели поставлены задачи: оценить развитие волевых действий у младших школьников и разработать занятия по кружковой работе «Умелые ручки». В качестве оценки выбраны критерии наличия волевых действий, таких как целеустремленность, точность и аккуратность. Новизна исследования состоит в том, что в процесс развития волевых действий включена кружковая деятельность посредством прикладной практики плетения. Регулярное плетение из разных материалов требует концентрации внимания, терпения, упорства и самодисциплины, что благотворно сказывается на развитие волевых действий у детей.
На фоне растущей потребности в интеграции английского языка в учебные программы неязыковых направлений стоит задача оптимизации организации самостоятельной учебной деятельности студентов с учётом особенности их восприятия и потребности в адаптированных методах обучения. Цель данной статьи состоит в том, чтобы актуализировать значимость организации, мотивации и педагогического сопровождения самостоятельной работы студентов в процессе овладения академическим чтением на иностранном языке. Главным аспектом является обучение студентов работе с текстами, включая извлечение смысла, анализ, формулирование выводов и применение полученных знаний на практике. В статье рассматриваются подходы к организации такой работы и предлагаются методики, способствующие развитию навыков академического чтения и критического мышления. Разработанная стратегия на основе комплексного подхода с применением онлайн-платформы была реализована на начальном этапе обучения академическому чтению на английском языке студентов первого курса в условиях мотивирующей интерактивной образовательной среды. На основании достигнутых положительных результатов можно заключить, что освоение навыков академического чтения на английском языке предполагает комплексный подход, который включает в себя мотивацию, оценивание, способствующее развитию, и адаптивное педагогическое сопровождение.
Представленная в статье проблема обусловлена необходимостью поиска путей, обеспечивающих готовность аспирантов и молодых исследователей к научной деятельности. Одним из главных факторов поддержки научной подготовки аспирантов является обеспечение консультирования со стороны опытного исследователя. Скаффолдинг рассматривается в статье как метод развития исследовательского потенциала аспиранта в совместной деятельности с научным руководителем. С позиций акмеологического подхода дано определение функций руководителя-консультанта в раскрытии психологических резервов личностного потенциала профессионала, что является необходимым для развития мотивации и заинтересованности молодых исследователей к научной деятельности. В рамках скаффолдинг-метода представлены компоненты научно-методологического консультирования, определяющие «точки роста» исследовательского потенциала аспирантов. Реализация метода скаффолдинга описана в терминах синергетического подхода, опирающегося на комплекс принципов: гомеостатичности, иерархичности, нелинейности, открытости, неустойчивости. Основополагающим принципом скаффолдинга аргументируется принцип актуального и потенциального, дуальный характер которого позволяет раскрыть научный потенциал аспиранта, спрогнозировать исходный результат научных достижений молодого исследователя и с учетом этого разработать этапы методологической поддержки исследователя.
В настоящее время педагоги уделяют большое внимание организации самостоятельной учебной деятельности школьников как важной составляющей образовательного процесса. Целью исследования явилось выявление теоретических основ организации учебно-воспитательного процесса с использованием дидактического приема «кластер» в самостоятельной учебной деятельности обучающихся (на примере предмета «Основы безопасности и защиты Родины») в ходе реализации урока и внеурочной деятельности. Приведены примерные образовательные результаты, формируемые у обучающихся в ходе использования данного приема. Также рассмотрены принципы использования межпредметных связей для нахождения согласованности между структурными элементами учебного материала различных предметов на примере использования дидактического приема «кластер» в рамках реализации самостоятельной учебной деятельности обучающихся по предмету «Основы безопасности и защиты Родины».
В данной статье охарактеризовано использование образовательного интернет-ресурса Quizlet в профессионально ориентированном обучении иностранному языку; обозначена важность знания иностранных языков и возможности онлайн-платформ для их изучения в целом; указано на значимость современных технологий, которые активизируют когнитивные процессы и поддерживают мотивацию студентов, для повышения эффективности учебного процесса; основное внимание уделяется развитию лексических навыков у студентов, изучающих иностранный язык; проанализированы возможности Quizlet как средства оптимизации процесса обучения, представлены методические рекомендации по его интеграции в учебный процесс и оценке эффективности; обоснован вывод о том, что применение Quizlet в качестве дополнительного инструмента при изучении иностранных языков раскрывает новые перспективы для улучшения качества образовательного процесса и более эффективной подготовки студентов к их будущей профессиональной деятельности, что обосновывает актуальность и научную новизну, теоретическую и практическую значимость статьи.
В статье рассматривается экономическая лексика, лежащая в основе формирования профессионально ориентированной коммуникативной компетенции иностранных студентов-экономистов. Авторы доказывают необходимость включения в систему преподавания русского языка как иностранного не только экономической терминологии, но и нетерминологической профессиональной лексики, являющейся неотъемлемой составляющей речевого общения бизнесменов, финансистов, экономистов. Для создания учебно-методических пособий и учебных словарей предлагается использовать материалы экономических средств массовой информации, в которых представлена современная терминология и профессионализмы, актуальные для коммуникации специалистов. В целях систематизации материала для дальнейшего теоретического исследования и практического использования в преподавании русского языка как иностранного в работе рассматриваются разные виды экономических терминов и профессионализмов, объясняются причины продуктивности способов их образования в русском языке. В исследовании намечаются пути дальнейшей разработки профессионально ориентированных учебно-методических материалов по языку специальности, в основе которых лежит современная экономическая лексика.
Статья посвящена исследованию проблемы формирования профессиональной физкультурно-оздоровительной компетентности у будущих педагогов дошкольного образования. Аргументирован процесс формирования данной компетенции у студентов педагогического вуза, а также сформулировано содержание и основные компоненты понятия профессиональной физкультурно-оздоровительной компетентности. Разработан критериально-диагностический инструментарий, который можно использовать при оценке уровня сформированности компонентов профессиональной физкультурно-оздоровительной компетентности. Проанализировано понятие «модель выпускника» с различных позиций: работодателя, вуза, государства. Представлены результаты пилотажного опроса руководителей дошкольных образовательных организаций, проведенного с целью уточнения формирования совокупности профессиональных качеств современного педагога на этапе реформирования дошкольного образования. Определено и апробировано действие комплекса перспективных педагогических условий, совершенствующих процесс формирования профессиональной физкультурно-оздоровительной компетентности у студентов.
В статье затрагивается актуальная тема проектирования содержания социально-гуманитарных дисциплин в инженерном образовании на переходном этапе перестройки российской системы высшего образования при разработке и внедрении в практику образовательных стандартов нового поколения. Проектирование содержания социально-гуманитарных дисциплин рассматривается автором путем интеграции областей научных знаний на примере социально-психологического модуля. В качестве интегратора содержания исследуемого модуля автор, используя свой педагогический опыт, рассматривает концепт, его понятие и потенциал применения при дидактическом проектировании образовательных программ в технических вузах. В данном исследовании выполнены задачи построения системы концептов разного уровня, установления связи концептов с универсальными компетенциями выпускников, задаваемыми образовательными стандартами нового поколения. Исследование показало эффективность применения концептного подхода при проектировании содержания социально-психологического модуля в инженерном образовании, представляя учебный материал в ракурсе национально-государственной идеи профессиональной деятельности специалиста в российском обществе.
В статье рассматриваются проблемы и перспективы применения приложений с генеративным искусственным интеллектом в системе высшего образования в целях создания персонифицированной среды обучения для студентов при изучении иностранного языка. Приложения искусственного интеллекта активно распространяются в сфере образования среди учащихся, преподавателей и административного персонала учебных организаций. Современные системы, использующие искусственный интеллект, способны участвовать в интерактивных диалогах, создавать осмысленный текст, презентации на заданную тему, выполнять несложные задания, генерировать изображения. В статье подчеркивается, что, имея огромный потенциал в расширении возможностей самообучения и внедрения социальных инноваций, приложения генеративного искусственного интеллекта могут стать разрушительными, создавая ложную информацию, нарушая права интеллектуальной собственности, заменяя самостоятельную творческую и исследовательскую работу учащихся. Возможности и влияние искусственного интеллекта на образование активно дискутируются учеными и педагогами во всем мире, при этом главный акцент делается на расширение диалога между людьми и машинами, на необходимости перехода от представления генеративного искусственного интеллекта как цепочки запросов и ответов к взаимному диалогу между людьми и машинами.
В данной статье рассматривается проблема развития навыков и умений студентов разноуровневых групп в рамках обучения иностранным языкам в высших учебных заведениях. Особое внимание уделено формам организации учебного процесса, способам применения таких педагогических технологий, как взаимообучение и обучение в сотрудничестве, а также возможность предоставления студентам множественного выбора заданий на каждом этапе работы с новым материалом. Были сделаны выводы об эффективности проанализированных методик, указаны конкретные способы их применения на занятиях по иностранному языку. Автором предложены варианты использования современных информационных технологий с целью оптимизации образовательного процесса, повышения мотивации студентов и создания комфортного образовательного пространства. Такой взгляд на проблему будет интересен специалистам в области лингвистики, педагогики и психологии.
В статье обосновывается актуальность изучения процесса освоения музыкального произведения в классе инструменталистов учреждений высшего профессионального образования на основе герменевтического подхода. Музыкальное произведение рассматривается как кросс-культурное и мультидисциплинарное явление, которое олицетворяет диалектику развития общества и вместе с тем единство субъективно-личностного и объективного, общего и частного, традиционного и новационного, канонического и специфического. В содержании четко обозначены: объект, предмет, цель и задачи, а также научная новизна, теоретическая и практическая значимость проводимого исследования. Дано рабочее определение искусству интерпретации музыкального произведения с позиций герменевтического подхода. Выявлены следующие педагогические условия, позволяющие эффективно осуществлять процесс освоения музыкальных произведений в классе инструменталистов учреждений высшего профессионального образования на основе герменевтического подхода: уровень квалификации педагога-исполнителя; качество педагогического взаимодействия (учителя и ученика), ведущего к сотворчеству, поиску и раскрытию смыслов; активная самостоятельная работа обучающегося, его самоорганизация и самообразование. В заключении констатируется то, что изучение заявленной проблематики составляет перспективу научных исследований в области педагогики музыкального образования, исполнительства, творчества.
В данной статье нами предпринята попытка осмысления сопряжения этнокультуры, языка и литературы коренного этноса ханты и русского народа с региональными процессами в пределах сложных и весьма разнообразных онтологических ландшафтов, в границах которых функционируют такое понятие, как «этнокультурный компонент», обладающий признаками культурной значимости, символичности и этнонациональной идентичности. Методически грамотная интеграция этнокультурного содержания в лингвистическое и литературоведческое образование обладает значительным педагогическим потенциалом, способствует не только эффективному усвоению языкового и литературного материала, но и обеспечивает комплексное духовно-нравственное развитие обучающихся, а также содействует сохранению и трансляции культурного наследия русского и хантыйского этносов. В результате исследование направлено на выявление способов, которыми образовательные практики могут способствовать укреплению этнокультурной идентичности и социальной сплоченности в многонациональном регионе Югры, что, в свою очередь, может оказать положительное влияние на академическую успеваемость и социальную адаптацию обучающихся.
Предлагаемая статья посвящена обоснованию путей активизации практики патриотического воспитания студенческой молодежи. Для Российского государства активизация воспитательно-патриотической деятельности - приоритетная задача политического руководства и всех государственных и общественных структур. Цель исследования: на основе анализа научной литературы, передового опыта и практики формирования патриотизма высших учебных заведений региона определить и предложить эффективные пути патриотического воспитания студентов. Исследование проведено с использованием следующих педагогических методов: отбор и изучение научной литературы по теме, теоретический анализ, анкетирование, беседы, конкретизация, обобщение, систематизация, синтез. Результат исследования - классифицированные и раскрытые пути активизации практики патриотического воспитания студенческой молодежи по трем группам: традиционные, инновационные и комбинированные. Разработанные и предлагаемые научные положения о путях улучшения воспитательно-патриотической практики обладают научной новизной, теоретической и практической значимостью. Они представляют интерес для современных исследователей патриотической темы, преподавателей и организаторов патриотического воспитания студентов и учащихся всех видов учебных заведений.
Статья посвящена изучению феномена «авторитет личности» и выполнена в рамках дискуссии об общественной роли данного феномена, которую он может играть в группе, профессиональном сообществе, например, в педагогическом. Представлены результаты поиска детерминантов и инвариантов, оснований и факторов, которые в совокупности позволят рассмотреть авторитет личности педагога как в динамике, так и в статике, осуществить типологизацию и квалиметрически оценить свойства. Методологическую основу исследования составляют концепции развития педагогических организаций, образовательного менеджмента в сочетании с теориями межличностных коммуникаций, группового развития обучающихся, общенаучными принципами системности и объективности, включая аналогию, сущностно-содержательный анализ и типологизацию. Дана авторская интерпретация структуры и содержания феномена «авторитет личности» на примере преподавателя высшей школы, характеристика типологического ряда авторитета личности, контекст в котором он рассматривается, качественные критерии и количественные индикаторы позволяющие комплексно оценить свойства авторитета личности в педагогическом коллективе.
Методика преподавания иностранного языка представляет собой систему методов и подходов, применяемых учителями в образовательном процессе, которые основываются на представлениях о природе языка и обучения. Педагоги выбирают и используют разнообразные методики с целью повышения образовательных возможностей и развития автономности учащихся. Интеллект-карты применяются в изучении иностранных языков для активизации имеющихся знаний учащихся по теме и содействия систематизации и запоминанию лексического материала. Цель данной статьи - доказать, что интеграция методов интеллектуальных карт в образовательный процесс обогащает учебный опыт, способствует формированию комплексного и многогранного мышления учащихся. Данный подход помогает педагогам подготовить студентов к решению сложных задач, улучшает восприятие языковых материалов, что в итоге способствует более глубокому освоению предмета и повышению общего уровня знаний. В ходе исследования было установлено, что использование методов интеллектуальных карт в образовательном процессе открывает перед учащимися новые возможности для углубленного осмысления и усвоения учебного материала. Визуальное представление информации облегчает понимание сложных концепций, позволяет выделить ключевые моменты и способствует лучшему запоминанию, что особенно важно в условиях быстро меняющегося информационного поля. Кроме того, ментальные карты стимулируют творческое и критическое мышление, развивают навыки анализа и синтеза информации, что необходимо для успешного обучения и профессионального роста. Они также способствуют формированию у учащихся навыков самообразования и самостоятельного поиска знаний, что служит устойчивой основой для их будущих успехов. В заключении автор приходит к выводу, что внедрение этих методов делает учебный процесс более динамичным, интересным и результативным, превращая образование в увлекательное и продуктивное путешествие по миру знаний.
В статье представлены направления развития системы научно-методической поддержки процесса формирования ценностных ориентаций, универсальных компетенций учащихся и студентов. Обращается внимание на исторический момент формирования компонентов ценностной основы научно-методической поддержки профессионального самоопределения будущих специалистов и единство научного, образовательного, производственного пространства в системе непрерывного образования. Предлагаются направления совершенствования профориентационной деятельности, профессиональной подготовки кадров в условиях модернизации системы образования, интеграции в цифровую экономику с учетом факторов, оказывающих влияние на этапы формирования профессиональных ценностных ориентаций будущих специалистов. Представлены историко-педагогические обоснования необходимости аксиологизации содержания образовательной деятельности на основе педагогического опыта разработки и реализации нового комплекса научно-методической поддержки, направленного на успешное профессиональное самоопределение будущих специалистов в системе «школа - вуз».
Сфера образования представляет собой важнейшую область, в которой ведётся активное взаимодействие на международном уровне. Причиной тому является желание государств развивать национальные системы образования, перенимая опыт лидеров. В статье рассматриваются ассоциации образовательных учреждений стран БРИКС, на основе которых строятся центры развития компетенций, определяемых требованиями современной цифровой экономики, а также выделены преимущества и проблемы, сопутствующие их созданию. В качестве практической реализации данных инициатив рассмотрены организации, принимающие участие в их разработке и применении. Одной из отечественных организаций, задействованных в создании ассоциированных образовательных учреждений, выступает отечественная Международная школа БРИКС+, действующая в Москве.
В статье поднимается вопрос о наиболее эффективных педагогических подходах, способствующих профессиональному развитию учителя физики в современном мире. Исследование этой темы опирается на анализ научных публикаций в области педагогических технологий, а также на государственную стратегию развития системы образования Российской Федерации. Для более глубокого понимания предмета в статье рассматриваются понятие «компетенция» и ключевые положения компетентностного подхода в образовании. Содержание технологии системно-деятельностного подхода в образовании представлено в методологической концепции, разработанной О. М. Коломиец. В схемах ориентировки системного типа отражена совместная деятельность педагога и учащегося. В основе этих схем лежит психологический аспект восприятия и осмысления информации, который помогает учащимся глубже понять изучаемый материал. Описанная методика системно-деятельностного подхода может быть полезна для повышения квалификации учителей физики и при разработке учебно-методических материалов по этому предмету.
В статье рассматриваются педагогические условия развития познавательного интереса курсантов морского университета к конвенционным дисциплинам. Формирование будущего специалиста морского транспорта в процессе обучения в морской образовательной организации как настоящего компетентного профессионала требует привить и развить у него в процессе обучения познавательный интерес к конвенционной подготовке, стремление к поиску и получению новых знаний. Цель исследования: обоснование и раскрытие совокупности педагогических условий, способствующих развитию познавательного интереса курсантов к конвенционным дисциплинам. Применены следующие методы: теоретические (изучение научных публикаций российских ученых; теоретический анализ; синтез; обобщение; ранжирование) и эмпирические (опрос; индивидуальные беседы). Результат исследования - совокупность педагогических условий развития познавательного интереса курсантов морского университета к конвенционным дисциплинам. Полученные результаты обладают научной новизной, теоретической и практической значимостью. Разработанные научные положения направлены на повышение качества и результативность профессиональной подготовки курсантов и представляют интерес для преподавательского и инструкторского составов всех видов учебных заведений.
В статье рассматриваются вопросы влияния искусственного интеллекта на процесс обучения иностранному языку студентов неязыковых вузов, а также на организацию его преподавания. Раскрыты преимущества использования нейросетей, представляющих собой ничем не ограниченный ресурс учебных материалов, методик и способов анализа учебных программ, а также их связь с иноязычным образовательным процессом. Изучение иностранного языка в непрофильном вузе представляет для студентов особую сложность в виду целого ряда проблем, которые были освещены в данной статье. В связи с этим приведены примеры сгенерированных нейросетями упражнений, которые можно использовать на уроках иностранного языка в неязыковом вузе. Представленный материал позволяет сделать вывод, что искусственный интеллект способствует тому, чтобы занятия были интересными, разнообразными, вызывающими отклик у студентов, стимулируя их более активную вовлеченность в процесс получения новых знаний.
В основу материала статьи легли итоги многолетнего опыта преподавательской деятельности и наработки, которые передаются от одного поколения педагогов другому на кафедре английского языка и профессиональной коммуникации Финансового университета, а именно - работа с аудированием у студентов бакалавриата. Это вид речевой деятельности по праву считается одним из самых сложных у обучаемых. В статье сделана попытка обобщить опыт работы по формированию и развитию навыков восприятия иноязычной речи на слух. Предлагается сочетать в заданиях различные виды когнитивных навыков и креативное мышление студентов с целью получения более эффективных результатов учебной аудиолингвальной деятельности. Даны рекомендации по активации одного из рецептивных навыков, а именно - аудирования иностранной речи. В статье делается вывод о том, что очень важно при обучении языку специальности в неязыковом вузе уделять внимание не только профессиональным аспектам на иностранном языке, но и знакомить с общей культурой, нормами бизнес-этикета, формами коммуникации и методами оформления письменных и устных образцов речи.
В данной статье рассматривается проблема реализации некоторых потенций, существующих в пространстве современного педагогического вуза для эффективной подготовки будущих педагогов к летней вожатской практике. В начале статьи речь идёт о базе прохождения такой практики. Далее исследуются характерные признаки основного содержания деятельности будущих учителей по ходу её реализации. Определяется цель их участия в данном виде практики. Выявляются наиболее характерные её черты. В качестве следующей исследовательской задачи авторами была определена попытка оценить роль различных академических дисциплин в формировании компетенций, необходимых для активного участия в выполнении соответствующих форм работы. Изучению также подвергаются формы практической подготовки студентов к профессиональной деятельности вожатых, используемые в некоторых организациях высшего образования, действующих на территории РФ. Делается предположение о наиболее приемлемом методологическом подходе к её реализации. Также рассматриваются основные принципы и организационно-педагогические условия, обеспечивающие его эффективное практическое применение.
В исследовании рассматривается проблема профессионального самоопределения обучающихся общеобразовательных организаций. Проводится анализ с точки зрения исследования психологических предпосылок профессионального самоопределения учащихся. Акцентируется связь заявленной проблемы со сложностью выбора профессиональной деятельности у молодёжи с целеполаганием. Отмечается, что период «неопределённого будущего» оказывает особое влияние на самоопределение своего будущего у старшеклассников. Подчёркивается, что профессиональное самоопределение не является линейным процессом: оно осложняется многими факторами. Выявлены основные психологические аспекты, определяющие процесс выбора профессии, а также роль образовательной среды в формировании профессионального самоопределения старшеклассников. В статье делается вывод о том, что психологические факторы профессионального самоопределения будущей жизненной деятельности формируются вследствие осознанного подхода к личностному формированию, который, в свою очередь, связан с созреванием ценностных ориентаций старшеклассника в общеобразовательной школе и формированием его самооценки и рабочей направленности в дальнейшем.
В данной статье рассматривается вопрос, с которым сталкиваются многие преподаватели неязыковых вузов на территории России, а именно: оправдано ли с методической точки зрения использование родного языка при освоении дисциплины «Иностранный язык в профессиональной сфере?». Приводятся аргументы «за» включение родного языка в практические занятия по иностранному языку, связанные с профессионально ориентированной подготовкой. Данные аргументы базируются как на основе анализа данных в ходе экспертной оценки, так и на основе проведенного анкетирования среди студентов старших курсов Высшей школы управления Финансового университета при Правительстве РФ. Предложены рекомендации по эффективному использованию родного языка (русского) в отдельных видах учебной деятельности на занятиях по иностранному языку для профессиональных целей с обоснованием видов заданий. В статье сделан вывод о том, что необходимость использования родного языка при освоении языка специальности ощущается не только преподавателями, но и студентами. Обучаемым важно, что они могут обращаться к педагогу или своему одногруппнику на родном языке для решения возникших проблем или в критической ситуации.
В статье отражены результаты теоретического анализа значимости китайских добродетелей и ценностей для развития у китайской молодежи национального самосознания. Анализ влияний исторических особенностей в становлении государственности в Китае позволил свидетельствовать о патриотическом воспитании и национальном самосознании студенческой молодежи вне пространства огромного культурного потенциала и ценностей философской традиции конфуцианства, накопленных в ходе тысячелетий истории. Результаты эмпирической части исследования указали на тот факт, что китайскими студентами осознается ограниченность своих знаний о национальных особенностях и культуре КНР, что приводит к отсутствию единства с нацией, к чувству недостаточной самооценки и принадлежности к великой цивилизации. Качественный анализ ответов подтвердил авторское предположение о необходимости выявления национальных эстетико-самобытных средств и педагогического инструментария с целью развития национального самосознания у студенческой молодежи Китая. Как предполагается, данные мероприятия будут выступать в качестве фактора единения китайской молодежи со своей культурой.
На основании анализа авторами собственного педагогического опыта, а также привлечения данных, содержащихся на страницах специальной литературы, устанавливаются наиболее характерные особенности применения активных методов обучения в образовательном пространстве современного медицинского вуза. Для этого в первую очередь статья раскрывает содержание и структуру понятия «активное обучение». На основе рассмотрения соответствующих аспектов определяются наиболее значимые его результаты. Далее в статье приведён анализ взглядов исследователей на то, какую роль в достижении подобных результатов может играть широкое применение методов, могущих быть отнесёнными к этой категории. Исходя из результатов изучения этой роли, а равно и учёта наиболее существенных характеристик современного контингента, осваивающего образовательные программы медицинских вузов, предлагаются некоторые рекомендации по их использованию. Затем авторы демонстрируют те методы активного обучения, использование которых, по их мнению, будет наиболее эффективным на современной стадии развития высшего медицинского образования в нашей стране.
В представленной статье актуализирована тема обучения переводу на занятиях по иностранному языку в нелингвистическом вузе. В работе представлены различные лексические, фразеологические и стилистические средства выразительности русского языка, необходимые для адекватного перевода современных текстов экономической тематики с английского языка с учётом целей переводческой деятельности и речевого воздействия на получателей информации. Также анализируются задания по развитию навыков перевода на родной язык, предлагаемые в учебниках по английскому языку для студентов финансово-экономического профиля. Делается вывод о необходимости специального обучения переводу с применением метафоризации, фразеологизмов, сочетаний различной степени устойчивости и клишированности для современных специалистов в области экономики. Предлагается разделение процесса формирования умения переводить тексты по экономике на две стадии. На первом этапе проводится знакомство с готовыми вариантами толкования иноязычного текста, отрывками или лексическими единицами с использованием средств выразительности русского языка. На втором - осуществляется непосредственная работа с оригинальным текстом, его перевод в разных стилистических вариациях в зависимости от получателей информации и целей воздействия на них.
В статье рассматривается процесс исследования воспитательного пространства высшего учебного заведения, выступающего в качестве составной части воспитательной системы, реализующей цели, направленные на формирование у субъектов образовательного процесса (студентов) качеств, ценностных ориентаций, установок, необходимых и позволяющих интегрироваться в социум и успешно реализоваться в профессиональной деятельности. Раскрыта содержательная часть понятия «воспитательное пространство вуза», представляющая собой совокупность элементов, предрасполагающих и делающих возможным организацию, дальнейшее осуществление воспитательной деятельности с участием студентов, призванной создать условия для успешного формирования и развития личности учащихся за счет осуществления с ними целенаправленной работы в период обучения в вузе. Обозначена специфика исследования воспитательного пространства высшего учебного заведения, основанная на применении методологических подходов, включающих в себя совокупность методов, средств, приемов, позволяющих сформировать полное представление о воспитательном пространстве как составной части системы воспитания, организуемой и осуществляемой в высшем учебном заведении параллельно с обучением студентов. Выделены и охарактеризованы основные методологические подходы, применяемые в рамках исследования воспитательного пространства вуза, определены их особенности с точки зрения содержательной части, направленности и ориентированности на получение конкретного результата по итогам комплексного изучения отдельных элементов воспитательного пространства.
Исследование посвящено проблеме формирования гуманистического стиля взаимоотношений в студенческой группе. Цель работы - выявить и обосновать ключевые принципы, способствующие развитию гуманистических отношений между студентами и преподавателями в высшей школе. Методология исследования включает анализ научной литературы, наблюдение и педагогический эксперимент. Основные результаты показывают, что гуманистический стиль взаимоотношений базируется на взаимном уважении, признании самоценности личности и создании условий для самореализации студентов. Научная новизна заключается в разработке комплексной модели формирования гуманистических отношений в студенческой среде. Практическая значимость состоит в возможности применения выявленных принципов для оптимизации педагогического взаимодействия и улучшения психологического климата в вузе. В статье делается вывод о том, что формирование гуманистического стиля взаимоотношений в студенческой среде представляет собой комплексный процесс, требующий системной реализации. Теоретический анализ и экспериментальная работа подтвердили эффективность интеграции личностно ориентированного подхода, принципа диалогичности общения и эмпатического взаимодействия в образовательном процессе.
В статье рассмотрен компетентностный подход как методологическая основа для модернизации современного образовательного процесса. Делается глубокий разбор фундаментальных категорий в педагогической науке, включая такие понятия, как «профессиональная квалификация», «научно-исследовательский потенциал» и «ориентация на формирование компетентностей», а также анализируются разнообразные научные экзегезы данных концептов. Особое внимание уделено задачам профессионального образования в условиях внедрения государственных образовательных стандартов третьего поколения, социокультурных изменений и научно-технического прогресса. Подчёркивается роль компетентностного подхода в подготовке специалистов, способных адаптироваться к быстроменяющимся условиям рынка труда. Рассматриваются проблемы теоретической и практической реализации компетентностного подхода, включая его значение для формирования автономности, саморазвития и инновационного потенциала обучающихся. Статья адресована педагогам, исследователям и разработчикам образовательных программ, стремящимся внедрить эффективные методологические решения для подготовки конкурентоспособных специалистов, соответствующих требованиям современного общества и мирового рынка труда.
Статья посвящена анализу влияния исторического контекста развития теории цвета на методику преподавания цветоведения в высшей школе. Актуальность темы обусловлена необходимостью совершенствования педагогических подходов с учетом фундаментальных основ цветовой теории и современных тенденций в визуальной культуре. Цель исследования - выявить ключевые аспекты эволюции представлений о цвете и определить их роль в формировании образовательных стратегий. В работе применены методы исторического, сравнительного и статистического анализа, а также анкетирование студентов и преподавателей (n = 154). Установлено, что исторически обусловленная многогранность теории цвета (физическая, физиологическая, психологическая, культурологическая трактовки) должна находить системное отражение в учебных программах (r = 0,78; p < 0,01). При этом акцент следует делать на интегративном подходе, объединяющем традиционные и инновационные модели цветовосприятия (61% респондентов). Результаты исследования имеют значение для оптимизации преподавания цветоведения и повышения профессиональных компетенций учащихся творческих специальностей. Перспективы дальнейшей работы связаны с детализацией методических рекомендаций и их экспериментальной апробацией.
В данной статье рассматривается проблема вовлечённости студентов в образовательный процесс на занятиях по дисциплине «Иностранный язык» в нелингвистическом вузе. Целью исследования являлось выявление ключевых категорий, способствующих повышению мотивации и активности студентов на занятиях, а также разработка практических рекомендаций для преподавателей. На данном этапе научного исследования основное внимание уделялось анализу потребностей студентов, изучающих английский язык в нелингвистическом вузе. Актуальность данного исследования обусловлена изменениями в ожиданиях современных студентов, которые стали более требовательными к образовательному процессу. Студенты не хотят ограничиваться традиционными методами обучения, если они не отвечают их потребностям и образу жизни. Важным аспектом данного исследования стала оптимизация стратегии проведения анализа потребностей студентов в контексте изучения иностранных языков в нелингвистическом вузе для выявления специфических потребностей студентов. Была предпринята попытка провести более глубокое понимание потребностей студентов по сравнению с предыдущими исследованиями. На основе проведённого анализа потребностей был сделан вывод, что индивидуализированный подход к обучению иностранному языку в нелингвистическом вузе, основанный на потребностях студентов, значительно увеличивает их вовлечённость и улучшает языковые навыки. Результаты исследования могут быть применены на практике для улучшения образовательного процесса. Работа имеет значительную ценность для последующих разработок темы, так как результаты исследования могут служить основой для создания более адаптированных учебных программ и методик. Статья будет полезна преподавателям иностранных языков, стремящимся улучшить качество обучения и повысить уровень вовлеченности студентов в изучение иностранного языка. В дальнейшем исследование будет продолжено с целью практической проверки полученных результатов для систематизации наиболее эффективных принципов.
Статья посвящена исследованию морально-этических и социальных ценностей, лежащих в основе профессиональной деятельности врачей, в условиях современного общества. Актуальность работы обусловлена многими изменениями в сфере медицины, включая технологические инновации, усложнение структуры здравоохранения и возрастание требований к профессионализму медицинских работников. В статье рассматривается влияние социокультурных трансформаций на формирование и воспроизводство профессиональных ценностей в медицинской субкультуре, а также анализируется роль морально-этических норм и механизмов их институционализации в поддержании профессиональной идентичности врачей и общественного доверия к медицинской практике. Статья подчеркивает ключевую роль морально-этических ценностей, таких как альтруизм, ответственность и эмпатия, в обеспечении высокого уровня профессионализма врачей, а также необходимость синергии гуманистической парадигмы и профессиональной подготовки для эффективного ответа на вызовы современного общества, связанные с цифровизацией, глобализацией и реформами здравоохранения.
В статье исследуются ключевые аспекты методики преподавания синтаксиса русского языка как второго, включая теоретические и практические подходы к обучению. Рассматриваются основные трудности, возникающие у учащихся, такие как порядок слов, сложные предложения и правила согласования. Особое внимание уделяется методам, направленным на преодоление этих сложностей, с акцентом на последовательное обучение, активное вовлечение учащихся и интеграцию синтаксиса в коммуникативную практику. Описаны инновационные интерактивные приемы, такие как групповые задания, анализ ошибок и использование цифровых технологий в учебном процессе. Анализируется роль синтаксического разбора в развитии языковой компетенции, а также значимость систематической коррекции ошибок и применения дифференцированного подхода. Данная статья представляет собой практическое руководство для преподавателей русского языка, стремящихся улучшить свои образовательные программы и создать комфортные условия для усвоения синтаксиса русской речи.
Предлагаемая статья посвящена обоснованию сущностных положений формирования экономической культуры курсантов морского университета. Цель исследования разработать научные положения формирования экономической культуры курсантов в процессе профессиональной подготовки в высшей морской школе. Методология исследования направлена на проведение обстоятельного теоретического анализа понятия «экономическая культура» и разработку сущностных основ его привития обучающимся в морском вузе. Исследование проводилось с применением совокупности педагогических методов: изучение литературы; теоретический анализ; синтез; интервью, беседы (индивидуальные, групповые); опрос; обобщение, конкретизация. Результат исследования - систематизированные сущностные положения формирования экономической культуры курсантов морского вуза. Разработанные научные положения обладают научной новизной, теоретической и практической значимостью. Они будут востребованы как для исследовательской деятельности, так и для организации и проведения целенаправленной учебно-воспитательной работы в высших и средних профессиональных учебных заведениях.
В настоящей статье рассматриваются способы выражения восприятия цвета в русском языке посредством единиц различных частей речи, анализируется представленность таких единиц в аутентичных текстах медицинской направленности (корпусы учебников по дисциплинам специальности «Лечебное дело», историй болезни и вопросы - ответы с медицинских форумов). В результате анализа нами были выделены актуальные для обучающихся медицинского профиля пласты цветовой лексики. Был рассмотрен ряд существующих учебников и пособий по русскому языку для иностранных студентов-медиков и отмечена недостаточная включенность в него изучаемого материала. В статье предлагается фрагмент системы упражнений и заданий, включающих описанные единицы, направленный на развитие языковых (словообразовательных и синтаксических) навыков и речевых умений профессиональной коммуникации.
В процессе обучения геометрии следует формировать рефлексивную деятельность на начальном этапе ее изучения, то есть начиная с 7 класса, потому что рефлексия помогает учащимся глубже понимать материал, самостоятельно находить ошибки и пробелы в знаниях, способствует развитию критического мышления. Для формирования рефлексивной деятельности мы применяем педагогическую технологию. В статье раскрываются компоненты технологии обучения (организационно-целевой, проектировочный, процессуально-действенный, диагностический, коррекционный). Ключевой задачей педагогической технологии является четкое определение целей обучения и создание инструментов для объективной оценки уровня знаний учащихся и их личностного развития на каждом этапе обучения. Авторы отмечают, что в эпоху цифровизации образования существуют цифровые инструменты, которые могут помочь учителю при обучении учащихся. Представителями СДМ являются «Живая математика», «GeoGebra», «1С: Математический конструктор» и др. Изменение образовательной среды дает возможность поиска новых подходов к обучению геометрии с использованием цифровых технологий.
В статье представлены результаты эмпирического исследования социальных практик профессионального обучения и трудоустройства слабослышащих женщин в Алтайском крае. Методика исследования строилась на основе анализа объективной и субъективной сторон данного процесса. Объективная сторона социальных практик отражает деятельность слабослышащего человека и его взаимодействие с социумом в аспекте обучения и трудоустройства. Субъективная сторона включает волевые личностные усилия инвалида, которые он прилагает для реализации в профессиональной сфере. В результате исследования выявлены мнения респондентов относительно желаемой занятости, трудностей и действий, предпринимаемых слабослышащей женщиной при профессиональном обучении и поиске места работы, а также оценка помощи со стороны государства и ближнего окружения в процессе интеграции инвалида в трудовую сферу. Проблемы трудоустройства женщин с нарушением слуха носят комплексный характер и включают в себя социальный, правовой, психологический и экономический аспекты. Успешность социальных практик обучения и трудоустройства слабослышащих женщин зависит от двух факторов: во-первых, от сочетания личностных качеств и усилий, которые женщины прилагают в процессе обучения и поиска работы, во-вторых, от адресной поддержки органов власти, общественных организаций и ближнего окружения.
В статье рассматривается имидж педагога, который играет ключевую роль в восприятии учителя как профессионала. Цель данной статьи заключается в анализе основных компонентов имиджа педагога, включая внешний вид, речевую и методическую культуру, а также использование тайм-менеджмента и тайм-хакинга в образовательной деятельности. Актуальность темы связана с необходимостью формирования у будущих учителей общечеловеческих ценностей и компетенций, которые в значительной мере определяют их профессиональный образ. Исследование подчеркивает, что хороший внешний вид и грамотное общение способствуют созданию доверия у учеников, тогда как методическая культура и эффективное планирование рабочего времени повышают уровень профессионализма педагога. Экологическая лингвообразовательная среда также рассматривается как важный компонент имиджа, способствующий формированию экологической грамотности у обучающихся. В статье также подчеркивается важность имиджа педагога для повышения качества образования и создания благоприятной образовательной среды. Результаты могут быть использованы для подготовки будущих педагогов и совершенствования профессионального развития действующих учителей.
В представленной работе анализируется специфика профессионального коммуникативного подхода в обучении будущих юристов, методы и подходы к развитию юридико-коммуникативной компетентности у студентов юридических вузов. Основная идея статьи заключается в том, что юридико-коммуникативная компетентность представляет собой важный показатель успеха будущих юристов в профессиональной среде. Авторы отмечают, что для формирования этой компетентности необходимо учитывать, как профессиональные знания и навыки, так и коммуникативные способности и ценностные ориентации студентов. Статья подчеркивает важность интегративной модели обучения, которая объединяет теоретические и практические аспекты, а также акцентирует внимание на необходимости использования междисциплинарного подхода в преподавании, охватывающего психологию, конфликтологию, риторику и другие дисциплины. Комплексный подход к развитию юридико-коммуникативной компетентности способствует формированию профессионализма будущих юристов. Логическим завершением работы является выделение условий, необходимых для успешной реализации модели юридико-коммуникативной компетентности, таких как правовая грамотность, коммуникативные навыки, умение вести переговоры и соблюдать этические нормы и др. Результаты исследования способствуют дополнению и обновлению научных представлений о важности коммуникативной компетентности для юристов и служат практическим руководством для педагогов, стремящихся повысить качество подготовки будущих специалистов в области права.
В статье рассматривается влияние цифровых технологий на трансформацию традиционных методов обучения. Авторы осуществляют анализ инструментов продвижения технологий в образовании: профессиональная подготовка преподавателей, внедрение инновационных сервисов в обучение, рекламные кампании для родителей и обучающихся, партнерские отношения с известными компаниями, помощь со стороны государства. Исследуются основные тенденции на рынке образовательных технологий (развитие онлайн-образования, геймификация процесса получения образования, смешанное обучение, внедрение виртуальной и дополненной реальности, открытые образовательные ресурсы). Авторы отмечают, что одним из основных направлений совершенствования образования в современном мире является персонализация методов обучения. Наиболее перспективной формой индивидуального образования является адаптивное обучение, которое осуществляется за счет таких учебных платформ, как Stepik, GetCourse и Skillspace. Уделяется внимание интерактивным элементам образования: ускоренному, активному, обоюдному и виртуальному взаимодействию. В статье также выявляются основные недостатки информационных технологий в образовании, основными из которых являются негативное воздействие на коммуникативные навыки студентов, проблемы с техническими средствами, отрицательное влияние на физическое состояние обучающегося.
Стремительно развивающиеся цифровые технологии и электронные ресурсы находят применение во многих областях, включая и образование. Преподавателям необходимо пересматривать методику и способы обучения различным дисциплинам. Авторами статьи выдвигается предложение о методической организации обучения иностранному языку на основе мобильных технологий с интеграцией инструментов искусственного интеллекта. После внедрения данного инструмента в образовательный процесс по иностранному языку в вузе будет усовершенствованно электронное обучение, и это позволит ни только повысить качество обучения, но и увеличить интерес обучающихся к изучению иностранного языка для специальных целей. Авторами представлен один из вариантов обучения грамматике в языковом канале в мессенджере на примере системы времен английского языка в виде дерева целей, концепция которого используется для представления знаний как иерархия задач или понятий, необходимых к освоению. Предварительно был проведен опрос среди преподавательского состава кафедры иностранных языков на тему эффективности и востребованности применения подобных технологий в образовательном процессе. Согласно результатам опроса, большая часть респондентов высказалась за использование цифровых технологий и не видит препятствий по их внедрению. Результаты исследования могут быть применены в работе технических вузов России. Также при переработке лексического технического материала на необходимый можно будет использовать мобильное приложение и в других профильных вузах.
С развитием технологий и изменениями в образовательной среде преподавание китайского языка русскоязычным студентам претерпевает значительные изменения. В данной статье систематизируются традиционные и новые форматы заданий в дистанционном курсе китайского языка для русскоязычных студентов, выявляются проблемы применения новых форматов заданий с целью разработки соответствующих рекомендаций для повышения качества обучения. Проведенное исследование базируется на комплексном подходе, включающем элементы системного и процессного подходов при исследовании форматов обучения, а также на использовании методов обобщения, систематизации, описания, контент-анализа, графического метода исследования. Примененные научные методы адекватны предмету исследования, что подтверждает достоверность и обоснованность полученных результатов. Выявленные проблемы применения новых форматов заданий в дистанционном курсе китайского языка для русскоязычных студентов связаны с организацией учебного процесса, восприятием информации, сопротивлением преподавателей и студентов и другими факторами. По результатам исследования автором предложены различные пути решения выявленных проблем для повышения степени усвоения информации и качества обучения в условиях развития новых образовательных технологий. Автор приходит к выводу о благоприятных перспективах использования мобильных приложений, искусственного интеллекта и нейросетей в обучении китайскому языку в дистанционном формате при решении выявленных проблем, что с развитием функций указанных технологий имеет дальнейшие перспективы исследования.
Авторы отмечают, что в условиях имеющегося терминологического многообразия существует серьезная методологическая проблема в интерпретации и дифференцировании содержательных различий феномена наставничества и его аналогов для понимания большинством педагогов-практиков. В результате теоретического осмысления основных отличий в определениях применяемых педагогической общественностью категорий «наставничество», «тьюторство», «кураторство», «коучинг» и «менторинг» авторы приходят к выводу о том, что возможно концептуально детерминировать сущности этих феноменов, разделив их на два принципиально отличающихся друг от друга кластера педагогических технологий. На основе анализа особенностей субъект-субъектного взаимодействия авторами предложен общий критерий оценивания, в качестве которого рассматривается центральный субъект взаимодействия, находящийся в фокусе внимания при практической реализации каждой педагогической технологии. Дифференцирование феноменов по предложенному критерию позволило авторам отнести к одному из кластеров наставничество, кураторство и менторинг, а к другому тьюторство и коучинг Авторы подчеркивают, что, несмотря на наличие специфических особенностей, феномены внутри каждого кластера можно рассматривать как смысловые синонимы. Поставив в соответствие каждому кластеру определенную модель субъект-субъектного взаимодействия, авторы приходят к выводу что, несмотря на терминологическое разнообразие феноменов, существует лишь две модели педагогического взаимодействия: доминации и сопровождения. Авторы акцентируют внимание на том, что выбор модели взаимодействия и педагогической технологии ее практической реализации определяется целеполаганием в реальной жизнедеятельности и остается за субъектами взаимодействия.
В статье рассматривается влияние использования игровых механик на процесс обучения. Авторами описаны возможности, которые предоставляет игрофикация обучающимся и преподавателям: создание сильной мотивации, улучшение вовлеченности, повышение эффективности обучения, помощь в усвоении сложных понятий, получение новых навыков и др. Установлено, что основной сильной стороной геймификации является мгновенное получение обратной связи по результату выполнения задания, чего недостает традиционному образованию. Особое внимание уделяется игровым механикам и тому, как они могут быть использованы в учебной деятельности: введение системы баллов, квесты, «игры по ролям», использование механики командных заданий, получение «ачивки», различные прогресс-бары и графики. На практических примерах авторы показывают, как игровые механики могут применяться в процессе преподавания иностранного языка и философии. Вместе с тем подчеркивается, что игрофикация не универсальна, игровые механики невозможно применять при преподавании всех учебных дисциплин и нельзя полностью заменить классические методы преподавания. Глубокого изучения предмета не представляется возможным достигнуть только через игровые элементы, так как механики концентрируются на упрощении подачи материала.
В статье кратко рассмотрены проблемы оценки управления развитием территориальных образовательных систем в Арктической зоне Российской Федерации на примере арктических районов Республики Саха (Якутия). Установлено региональное своеобразие образовательных систем арктических районов Якутии: территориальная разобщенность, малокомплектность и низкий уровень дифференциации образовательных организаций, удаленность органов управления образованием. Выявлена пространственная и демографическая маркированность управления образованием в Арктике. На основе исследований, проведенных в Северо-Восточном федеральном университете в 2012-2024 гг., раскрываются особенности позиционирования арктических районов в образовательном пространстве республики. Выделены доминантные компоненты управления развитием образовательных систем арктических районов. Показаны расширение масштаба и разнообразие используемых методов оценки, их вариативность и адаптируемость к контекстным факторам.
Исследование интенсифицирует практику применения субъектно-ориентированных технологий в рамках подготовки обучающихся к профессиональной деятельности в перспективе появления нового спектра профессий на основе междисциплинарности в самом обозримом будущем. Акцентируется необходимость развития субъектной позиции студентов бакалавриата как основы самоопределения и самоактуализации. Объясняется роль высшего образования в отечественной подготовке кадрового инновационного потенциала междисциплинарной направленности и необходимость методологического обоснования применения субъектно-ориентированных технологий в учебном процессе. Обозначены концептуальные основы нормативно-правовой документации, апеллирующие к необходимости пересмотра идей и принципов интерактивных технологий, ориентированных на активизацию позиции обучающихся и развитие их индивидуальности. Предлагается авторский анализ подходов к понятию «субъективно-ориентированные технологии», раскрыт его смысл, характерные особенности. Предпринята попытка представить этапы педагогического сопровождения актуализации субъектно-ориентированных технологий, обеспечивающие диалоговый, партнерский характер взаимодействия. Проанализирован кейс по реализации субъектно-ориентированных технологий с целью стимулирования активности, самостоятельности, ценностного отношения студентов бакалавриата четвертого года обучения к будущей профессиональной деятельности на примере направления подготовки 38.03.06 Торговое дело (ОП «Международная коммерция») на базе Высшей школы корпоративного управления РАНХиГС (г Москва). Конкретизированы способы реализации субъектно-ориентированных технологий: работа над проектом, сюжетно-ролевая игра, кейс-технологии и средства - социальные медиа. Заявлены результаты применения субъектно-ориентированных технологий в попытке оценить положительное влияние на становление субъектности, процесс самоопределения и эффективную реализацию свободного выбора будущих специалистов в контексте профессиональной деятельности.
Данная статья посвящена вопросу использования мобильных технологий в обучении слабослышащих китайскому языку. Свое исследование авторы основывают на принципах обучения слабослышащих иностранным языкам и результатах анализа мобильных технологий, которые способны реализовать данные принципы в обучении. Последовательно рассматриваются технологии дополненной и виртуальной реальности, технологии тактильной обратной связи, технологии социальных сетей, использование русского и китайского жестового языка в обучении китайскому языку, визуальную дифференциацию фонетических явлений и иллюстративно доказывается то, что указанные принципы и технологии способны оказать положительное влияние на процесс обучения слабослышащих китайскому языку. Авторы также привлекают визуальную наглядность, формирование ассоциаций и динамическое отображение жестового языка к применению в методике обучения китайскому языку слабослышащих обучающихся. Представленные данные позволяют сделать вывод, что использование мобильных технологий способно повысить эффективность обучения слабослышащих китайскому языку. Результаты исследования можно использовать при разработке методик обучения слабослышащих китайскому языку.
Цель статьи - обобщение специфических национальных, психологических, этносоциальных особенностей иностранных студентов из стран дальнего зарубежья (Азиатско-Тихоокеанского региона, Юго-Восточной Азии, Африки, Латинской Америки) в рамках начального этапа обучения с установкой на выявление сходных или сближающих их черт. В качестве сходных этнопсихологических черт были выявлены следующие: страх «совершить ошибку», нежелание прямого диалога с преподавателем, не всегда высокая мотивация и быстрая утомляемость. На основе установленных сходных этнопсихологических черт даётся ряд рекомендаций для работы в мультикультурной группе, касающихся типов заданий, характера подачи учебного материала, специфики взаимодействия преподавателя со студентами. В качестве наиболее эффективных и продуктивных приёмов для работы в мультикультурной аудитории в статье предлагаются различные интерактивные виды деятельности, фрагментарность в подаче учебного материала, визуализация, геймизация, частая смена видов деятельности и индивидуальный подход.
Статья посвящена анализу физико-математического образования в России на всех уровнях - от начальной школы до университета. Проводится сравнение с образованием в других странах. Показано, что образование, даже такое наиболее далекое от общественно-политических проблем, как физико-математическое, неизбежно оказывается идеологизированным, и это накладывает отпечаток на все его аспекты от отбора материала до выбора степени строгости изложения. Обозначены проблемы, возникающие на данном этапе развития российского физико-математического образования, и предлагаются рациональные способы устранения имеющихся трудностей, начиная с частных методик преподавателей, возможности интернет-образования, использования искусственного интеллекта, обращение к которому доступно современным студентам и школьникам, и заканчивая полномасштабным участием государства в формировании доктрины образования. Обозначены и конкретные проблемы, возникающие, например, при проведении единого государственного экзамена.
Статья посвящена исследованию феномена «государственно-патриотическое воспитание». Целью статьи является анализ подходов отечественных ученых к рассматриваемому явлению и определение сущности, структуры и особенностей государственно-патриотического воспитания учащейся молодежи морского университета. Применены педагогические методы: изучение и анализ научной литературы, контент-анализ научных публикаций, синтез, обобщение, конкретизация, беседа, опрос. Результат исследования - обоснованы и раскрыты сущность и компоненты государственно-патриотического воспитания учащейся молодежи морского университета; систематизированы характерные особенности изучаемого явления. Материалы и выводы обладают научной новизной, теоретической и практической значимостью и являются основой для разработки концепции государственно-патриотического воспитания учащейся молодежи. Они будут востребованы учеными и исследователями, преподавателями высшей и средней профессиональной школы, организаторами патриотического воспитания учащейся молодежи для проведения научных изысканий, организации воспитательно-патриотической работы.
Статистика статьи
Статистика просмотров за 2025 год.
Издательство
- Издательство
 - РМНКО
 - Регион
 - Россия, Горно-Алтайск
 - Почтовый адрес
 - 649000, г. Горно-Алтайск, пр-т. Коммунистический, 68, офис 301, редколлегия журнала "Мир науки, культуры, образования".
 - Юр. адрес
 - 649000, Республика Алтай, г. Горно-Алтайск, ул. Чорос-Гуркина Г. И., д. 34, кв. 32
 - ФИО
 - Петров Андрей Андреевич (ГЕНЕРАЛЬНЫЙ ДИРЕКТОР)
 - E-mail адрес
 - mnko@mail.ru
 - Контактный телефон
 - +7 (980) 1122508